

2024
Ремонт 3-кімнатної квартири у ЖК «Комфорт Таун» для пари підприємців
Якою може бути квартира для пари молодих підприємців? Як досягти функціональності та лаконічності? І як врахувати всі нюанси, щоб зробити ремонт цивілізовано, вчасно та надійно? Про все це — у нашому новому кейсі
Місце
м. Київ, ЖК "Комфорт Таун"
Площа
47 м2
Кількість кімнат
1 кімната
Стиль
Сучасний
Тип будинку
Новобудова
Термін реалізації
4 місяця
Історія цього проєкту
Ще у 2020 році до нас звернулась студія дизайну-інтер’єру, яка розробила проєкт для пари молодих підприємців — Олександра та Нати. Вони — засновники бренду одягу BLVCK LIMIT.

Ключове очікування підприємців — зробити сучасний ремонт так, щоб не паритись, врахувати всі деталі, отримати крутий сервіс.
Коли студія віддала проєкт, ми розробили кошторис та презентували рішення замовникам. Їм сподобався підхід, коли не треба контролити кожен крок та можна при цьому знати все необхідне про перебіг ремонту.
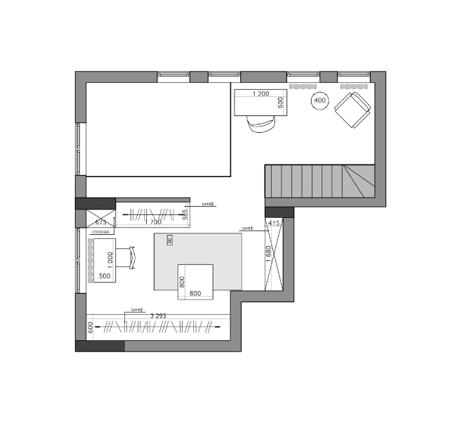
Планування квартири
Цей проєкт ми почали ще восени 2020 року, але тільки в червні 2024 року зробили повноцінну фотосесію. Тож нижче розкажемо, як проходив ремонт і покажемо стан квартири після 2 років реального життя пари.
Як проходив ремонт
Коли ми підписали договір і почали роботу над об’єктом, були тільки голі стіни від забудовника. Перед стартом ми розробили графік, щоб весь ремонт, закупівлі та кроки були продуманими та передбачуваними.
Графік виконання робіт, що є додатком до договору
Ми чудово розуміємо, що наші замовники не хочуть перетворюватись на прорабів і витрачати на ремонт багато часу
Олександр та Ната — підприємці, тож вони, як ніхто, знають вартість свого часу. Тож ми робили щотижневі звіти та показували прогрес. Як правило, це фото та відео та коментарі простою мовою, що саме зроблено та які подальші дії.
Приклади фото зі звітів у ході ремонту.

Макс Колот
Співзасновник Buildburo
Наша головна задача — дати замовникам найнеобхідніше, але не грузити їх деталями, яку драбину ми використали, з чим змішували цемент та як круто проклали кабель. Вони обирають нас, щоб не паритись і отримати впевненість, що їх житло вийде комфортним та надійним.
Оскільки квартира дворівнева, а висота стелі досягає місцями 8 метрів, майже впродовж усього ремонту на об’єкті було риштування.
Як проходить оплата, закупівлі та на чому ми допомагаємо зекономити
Звична практика для нас — розподіляти ремонт та оплату на етапи. Це зручно з точки зору управління проєктом і вигідно для замовників. Тим паче, що всі етапи, деталі та суми фіксується у договорі.
Аванс перед початком робіт
Аванс перед початком робіт етапу, який дорівнює сумі, необхідній на матеріали.
Оплата за самі роботи
— вона проводиться вже по факту виконання нашою командою.
Позачергово можуть проводитись оплати за чистові матеріали, якщо це необхідно з точки зору термінів. Наприклад, коли термін доставки певної плитки чи підлоги 1,5 місяці, ми будемо радити замовити і оплатити її за 1,5-2 місяці. Так ми будемо впевнені, що ремонт не стане на паузу через очікування, а замовник не буде розчарований розтягнутими термінами.

Макс Колот
Співзасновник Buildburo
Для нас дуже важливий кожен проєкт, репутація та той зворотній зв’язок, який ми отримуємо. І саме тому ми фокусуємось як на сервісі, так і на раціональних вигодах. Так, наприклад, у нас часто є власна знижка на матеріали, сантехніку чи меблі. Часом це 10-30%, які врешті-решт економить саме замовник.
Через 7 місяців ремонт був повністю завершений саме так, як його уявляли замовники та візуалізували в проєкті. Влітку 2024 року ми завітали до квартири Олександра та Нати. Пропонуємо і вам зробити віртуальний тур до них в гості 😉
Перший поверх вийшов дуже просторим, легким та світлим. Тут розташована велика вітальня, кухня, санвузол. Стримані, мінімалістичні кольори і акценти на окремих елементах, як от фасади кухні.
Санвузол з акцентом на текстури, матеріали та світло.
Простора вітальня з другим світлом та дверима прихованого монтажу.
Вид з другого поверху та робоча зона.
Одна з особливостей цієї квартири — невелика тераса, де можна поніжитися на сонці, почитати книгу чи влаштувати барбекю.
На першому поверсі також розташована спальня та другий санвузол.
Яка команда працювала над ремонтом
Проджект-менеджер
Виконроб
Відділ постачання
Кошторис
Майстри
Дизайнери
Ми дуже вдячні Олександру та Наті, що довірились та дали нам можливість самостійно реалізувати всі можливі рішення. Як говорять самі замовники, ця довіра та очікування повністю виправдались.
«В целом, реально нам очень повезло и понравилось с вами работать, теперь советую вас своим друзьям и знакомым. Понравилось четкость, понятность и прозрачность всего процесса. То что цены фиксируются на момент подписания договора, что мне не нужно переживать, что сейчас материалы подорожают и изменится конечная цифра. Понравилось разбивка проекта на части и периодичность оплат, это комфортно для клиента. Так же очень хорошо, что вы даете гарантию на выполнение работы и материалы и без вопросов потом меняли или исправляли какие-то ошибки. Чувствуется, в целом, работу под ключ, что для меня этот ремонт не стал каким то гемороем, а наоборот))»



Прямо зараз ви можете відправити нам свій дизайн-проєкт на безкоштовний розрахунок чи зв'язатись, щоб отримати попередній розрахунок навіть без проєкту
Більше робіт
2020-2025
Більше робіт
2020-2025


2024
Ремонт 3-кімнатної квартири у ЖК «Комфорт Таун» для пари підприємців
Якою може бути квартира для пари молодих підприємців? Як досягти функціональності та лаконічності? І як врахувати всі нюанси, щоб зробити ремонт цивілізовано, вчасно та надійно? Про все це — у нашому новому кейсі
Місце
м. Київ, ЖК "Комфорт Таун"
Площа
47 м2
Кількість кімнат
1 кімната
Стиль
Сучасний
Тип будинку
Новобудова
Термін реалізації
4 місяця
Історія цього проєкту
Ще у 2020 році до нас звернулась студія дизайну-інтер’єру, яка розробила проєкт для пари молодих підприємців — Олександра та Нати. Вони — засновники бренду одягу BLVCK LIMIT.

Ключове очікування підприємців — зробити сучасний ремонт так, щоб не паритись, врахувати всі деталі, отримати крутий сервіс.
Коли студія віддала проєкт, ми розробили кошторис та презентували рішення замовникам. Їм сподобався підхід, коли не треба контролити кожен крок та можна при цьому знати все необхідне про перебіг ремонту.
Планування квартири
Цей проєкт ми почали ще восени 2020 року, але тільки в червні 2024 року зробили повноцінну фотосесію. Тож нижче розкажемо, як проходив ремонт і покажемо стан квартири після 2 років реального життя пари.
Як проходив ремонт
Коли ми підписали договір і почали роботу над об’єктом, були тільки голі стіни від забудовника. Перед стартом ми розробили графік, щоб весь ремонт, закупівлі та кроки були продуманими та передбачуваними.
Графік виконання робіт, що є додатком до договору
Ми чудово розуміємо, що наші замовники не хочуть перетворюватись на прорабів і витрачати на ремонт багато часу
Олександр та Ната — підприємці, тож вони, як ніхто, знають вартість свого часу. Тож ми робили щотижневі звіти та показували прогрес. Як правило, це фото та відео та коментарі простою мовою, що саме зроблено та які подальші дії.
Приклади фото зі звітів у ході ремонту.

Макс Колот
Співзасновник Buildburo
Наша головна задача — дати замовникам найнеобхідніше, але не грузити їх деталями, яку драбину ми використали, з чим змішували цемент та як круто проклали кабель. Вони обирають нас, щоб не паритись і отримати впевненість, що їх житло вийде комфортним та надійним.
Оскільки квартира дворівнева, а висота стелі досягає місцями 8 метрів, майже впродовж усього ремонту на об’єкті було риштування.
Як проходить оплата, закупівлі та на чому ми допомагаємо зекономити
Звична практика для нас — розподіляти ремонт та оплату на етапи. Це зручно з точки зору управління проєктом і вигідно для замовників. Тим паче, що всі етапи, деталі та суми фіксується у договорі.
Аванс перед початком робіт
Аванс перед початком робіт етапу, який дорівнює сумі, необхідній на матеріали.
Оплата за самі роботи
— вона проводиться вже по факту виконання нашою командою.
Позачергово можуть проводитись оплати за чистові матеріали, якщо це необхідно з точки зору термінів. Наприклад, коли термін доставки певної плитки чи підлоги 1,5 місяці, ми будемо радити замовити і оплатити її за 1,5-2 місяці. Так ми будемо впевнені, що ремонт не стане на паузу через очікування, а замовник не буде розчарований розтягнутими термінами.

Макс Колот
Співзасновник Buildburo
Для нас дуже важливий кожен проєкт, репутація та той зворотній зв’язок, який ми отримуємо. І саме тому ми фокусуємось як на сервісі, так і на раціональних вигодах. Так, наприклад, у нас часто є власна знижка на матеріали, сантехніку чи меблі. Часом це 10-30%, які врешті-решт економить саме замовник.
Через 7 місяців ремонт був повністю завершений саме так, як його уявляли замовники та візуалізували в проєкті. Влітку 2024 року ми завітали до квартири Олександра та Нати. Пропонуємо і вам зробити віртуальний тур до них в гості 😉
Перший поверх вийшов дуже просторим, легким та світлим. Тут розташована велика вітальня, кухня, санвузол. Стримані, мінімалістичні кольори і акценти на окремих елементах, як от фасади кухні.
Санвузол з акцентом на текстури, матеріали та світло.
Простора вітальня з другим світлом та дверима прихованого монтажу.
Вид з другого поверху та робоча зона.
Одна з особливостей цієї квартири — невелика тераса, де можна поніжитися на сонці, почитати книгу чи влаштувати барбекю.
На першому поверсі також розташована спальня та другий санвузол.
Яка команда працювала над ремонтом
Проджект-менеджер
Виконроб
Відділ постачання
Кошторис
Майстри
Дизайнери
Ми дуже вдячні Олександру та Наті, що довірились та дали нам можливість самостійно реалізувати всі можливі рішення. Як говорять самі замовники, ця довіра та очікування повністю виправдались.
«В целом, реально нам очень повезло и понравилось с вами работать, теперь советую вас своим друзьям и знакомым. Понравилось четкость, понятность и прозрачность всего процесса. То что цены фиксируются на момент подписания договора, что мне не нужно переживать, что сейчас материалы подорожают и изменится конечная цифра. Понравилось разбивка проекта на части и периодичность оплат, это комфортно для клиента. Так же очень хорошо, что вы даете гарантию на выполнение работы и материалы и без вопросов потом меняли или исправляли какие-то ошибки. Чувствуется, в целом, работу под ключ, что для меня этот ремонт не стал каким то гемороем, а наоборот))»


Прямо зараз ви можете відправити нам свій дизайн-проєкт на безкоштовний розрахунок чи зв'язатись, щоб отримати попередній розрахунок навіть без проєкту


2024
Ремонт 3-кімнатної квартири у ЖК «Комфорт Таун» для пари підприємців
Якою може бути квартира для пари молодих підприємців? Як досягти функціональності та лаконічності? І як врахувати всі нюанси, щоб зробити ремонт цивілізовано, вчасно та надійно? Про все це — у нашому новому кейсі
Місце
м. Київ, ЖК "Комфорт Таун"
Площа
47 м2
Кількість кімнат
1 кімната
Стиль
Сучасний
Тип будинку
Новобудова
Термін реалізації
4 місяця
Історія цього проєкту
Ще у 2020 році до нас звернулась студія дизайну-інтер’єру, яка розробила проєкт для пари молодих підприємців — Олександра та Нати. Вони — засновники бренду одягу BLVCK LIMIT.

Ключове очікування підприємців — зробити сучасний ремонт так, щоб не паритись, врахувати всі деталі, отримати крутий сервіс.
Коли студія віддала проєкт, ми розробили кошторис та презентували рішення замовникам. Їм сподобався підхід, коли не треба контролити кожен крок та можна при цьому знати все необхідне про перебіг ремонту.
Планування квартири
Цей проєкт ми почали ще восени 2020 року, але тільки в червні 2024 року зробили повноцінну фотосесію. Тож нижче розкажемо, як проходив ремонт і покажемо стан квартири після 2 років реального життя пари.
Як проходив ремонт
Коли ми підписали договір і почали роботу над об’єктом, були тільки голі стіни від забудовника. Перед стартом ми розробили графік, щоб весь ремонт, закупівлі та кроки були продуманими та передбачуваними.
Графік виконання робіт, що є додатком до договору
Ми чудово розуміємо, що наші замовники не хочуть перетворюватись на прорабів і витрачати на ремонт багато часу
Олександр та Ната — підприємці, тож вони, як ніхто, знають вартість свого часу. Тож ми робили щотижневі звіти та показували прогрес. Як правило, це фото та відео та коментарі простою мовою, що саме зроблено та які подальші дії.
Приклади фото зі звітів у ході ремонту.

Макс Колот
Співзасновник Buildburo
Наша головна задача — дати замовникам найнеобхідніше, але не грузити їх деталями, яку драбину ми використали, з чим змішували цемент та як круто проклали кабель. Вони обирають нас, щоб не паритись і отримати впевненість, що їх житло вийде комфортним та надійним.
Оскільки квартира дворівнева, а висота стелі досягає місцями 8 метрів, майже впродовж усього ремонту на об’єкті було риштування.
Як проходить оплата, закупівлі та на чому ми допомагаємо зекономити
Звична практика для нас — розподіляти ремонт та оплату на етапи. Це зручно з точки зору управління проєктом і вигідно для замовників. Тим паче, що всі етапи, деталі та суми фіксується у договорі.
Аванс перед початком робіт
Аванс перед початком робіт етапу, який дорівнює сумі, необхідній на матеріали.
Оплата за самі роботи
— вона проводиться вже по факту виконання нашою командою.
Позачергово можуть проводитись оплати за чистові матеріали, якщо це необхідно з точки зору термінів. Наприклад, коли термін доставки певної плитки чи підлоги 1,5 місяці, ми будемо радити замовити і оплатити її за 1,5-2 місяці. Так ми будемо впевнені, що ремонт не стане на паузу через очікування, а замовник не буде розчарований розтягнутими термінами.

Макс Колот
Співзасновник Buildburo
Для нас дуже важливий кожен проєкт, репутація та той зворотній зв’язок, який ми отримуємо. І саме тому ми фокусуємось як на сервісі, так і на раціональних вигодах. Так, наприклад, у нас часто є власна знижка на матеріали, сантехніку чи меблі. Часом це 10-30%, які врешті-решт економить саме замовник.
Через 7 місяців ремонт був повністю завершений саме так, як його уявляли замовники та візуалізували в проєкті. Влітку 2024 року ми завітали до квартири Олександра та Нати. Пропонуємо і вам зробити віртуальний тур до них в гості 😉
Перший поверх вийшов дуже просторим, легким та світлим. Тут розташована велика вітальня, кухня, санвузол. Стримані, мінімалістичні кольори і акценти на окремих елементах, як от фасади кухні.
Санвузол з акцентом на текстури, матеріали та світло.
Простора вітальня з другим світлом та дверима прихованого монтажу.
Вид з другого поверху та робоча зона.
Одна з особливостей цієї квартири — невелика тераса, де можна поніжитися на сонці, почитати книгу чи влаштувати барбекю.
На першому поверсі також розташована спальня та другий санвузол.
Яка команда працювала над ремонтом
Проджект-менеджер
Виконроб
Відділ постачання
Кошторис
Майстри
Дизайнери
Ми дуже вдячні Олександру та Наті, що довірились та дали нам можливість самостійно реалізувати всі можливі рішення. Як говорять самі замовники, ця довіра та очікування повністю виправдались.
«В целом, реально нам очень повезло и понравилось с вами работать, теперь советую вас своим друзьям и знакомым. Понравилось четкость, понятность и прозрачность всего процесса. То что цены фиксируются на момент подписания договора, что мне не нужно переживать, что сейчас материалы подорожают и изменится конечная цифра. Понравилось разбивка проекта на части и периодичность оплат, это комфортно для клиента. Так же очень хорошо, что вы даете гарантию на выполнение работы и материалы и без вопросов потом меняли или исправляли какие-то ошибки. Чувствуется, в целом, работу под ключ, что для меня этот ремонт не стал каким то гемороем, а наоборот))»


Прямо зараз ви можете відправити нам свій дизайн-проєкт на безкоштовний розрахунок чи зв'язатись, щоб отримати попередній розрахунок навіть без проєкту
























