2021
Як ми зробили сучасний ремонт у ЖК «Нова Англія» майже без участі самого замовника
Кейс по готовому об'єкту: етапи, сроки, матеріали та ціни. Описуємо весь процес ремонту квартири та розказуємо, як створити приємне житло, не виходячи за жорсткі рамки бюджету. Розмірковуємо про сам проєкт, організацію робіт, матеріали та меблі. Ділимось досвідом: на чому можна економити, а що вийде врешті решт тільки дорожче.
Місце
м. Київ, ЖК "Нова Англія"
Площа
37 м2
Кількість кімнат
1 кімната
Стиль
Сучасний
Тип будинку
Новобудова
Термін реалізації
3 місяця
Задача
Клієнт прийшов до нас з конкретною задачею: зробити стильне, ергономічне житло під здачу в довгострокову оренду. При цьому потрібно було врахувати 2 важливих нюанси: не виходити за рамки бюджету та мінімально залучати самого замовника у процес, бо він майже весь час буде за кордоном. Через 4 місяці замовник повністю переконався у тому, що це можливо, навіть не знаходячись на об'єкті.
Робота над проєктом
Коли йдеться про квартиру для здачі в оренду, немає сенсу розробляти повноцінний проект з візуалізаціями. Для цього є 2 причини:
Збільшуються сроки. Розробка повноцінного проекту займає 2,5-3 місяці.
Вартість повного проекту із візуалізаціями $30-$50/кв.м.
Для цієї задачі більш актуальна альтернатива — технічний проєкт або, як ми його називаємо, «комплект креслень». Це продумана інструкція для будівельників, у якій прописано, що і як саме повинно бути реалізовано. При цьому термін виконання комплекту креслень — усього 1 місяць, а вартість — $20-$30/кв. м.
Почали із планування. Забудовник створив досить вдале планування, тому ми навіть не передбачали демонтаж та монтаж стін, а лише детально опрацювали розміщення меблів.
На 37 квадратних метрах розташована кухня-вітальня (19 кв.м.), робоче місце на лоджії, окрема спальня (11 кв.м.), коридор і санвузол. Складним моментом був санвузол через невеликі розміри.
Планування квартири
Як і будь-який проєкт, ми почали з головної ідеї та концепту. Замовник хотів сучасний стиль та популярні рішення саме для оренди. Ми знайшли релевантні референси та створили декілька візуалізацій, щоб клієнт побачив ідеї та хід думок.
Такі візуалізації створюються швидко, ми їх називаємо one day project. Бо у випадку з індивідуальною розробкою проєктів це на порядок складніша та детальна візуалізація простору. У базовому варіанті дизайн-проєкту швидкі візуалізації справляються із задачею «показати концепт».
Квартиру зробили світлою, щоб візуально збільшити сприйняття маленької площі. Стіни пофарбували світло-сірою фарбою та використовували білі фасади кухні та шаф.
Доповнили кольорову гаму деревом теплого відтінку на підлозі та в елементах меблів. Таким чином створили основу інтер'єру лише з двох кольорів. Створювати атмосферу та розставляти акценти можна вже за допомогою декору. Після узгодження дизайну перейшли до розробки альбому креслень.

Макс Колот
Співзасновник Buildburo
У процесі розробки проекту обговорювали лише деякі ключові питання, за весь час проектування у нас із замовником було кілька відеодзвінків тривалістю 30-40 хвилин та листування у Telegram-чаті.
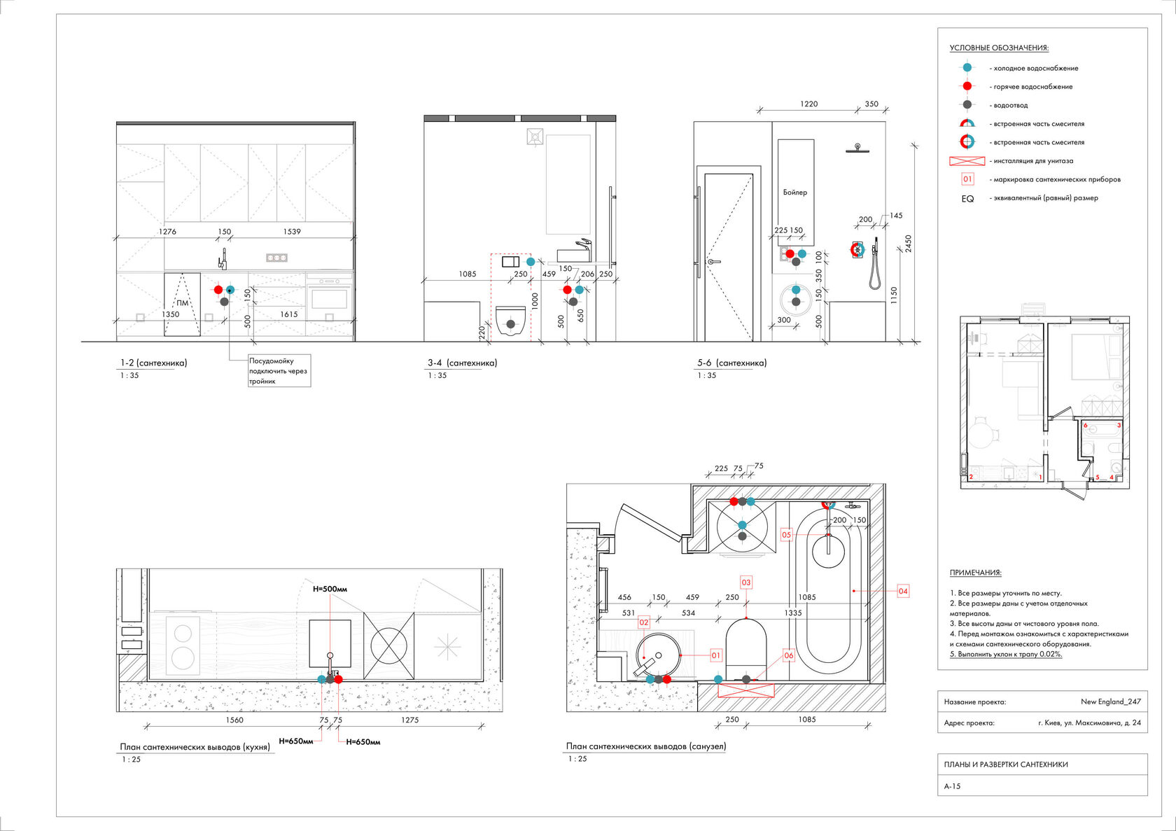
Клієнт не захотів вникати у деталі та довірив усі технічні рішення нам. Все було опрацьовано на кресленнях. Були розроблені плани та розгортки:
Як проходив ремонт
Кошторис
Ми працюємо за системою fixed price, тому кошторис розраховуємо точно та уважно. Якщо в процесі вилізуть моменти, які ми не врахували при розрахунку, то робимо їх власним коштом. Кошторис може змінюватися під час ремонту лише з ініціативи замовника, якщо замовник захоче щось додати чи змінити. Коли проєкт був готовий, ми підготували детальний кошторис.
Договір
Підготували та погодили договір на ремонт. У договорі фіксуються графік, строки та ціни, а також додається повний кошторис. Також закріплюються основні умови та гарантійний термін.
Виконання робіт
Клієнт прийшов до нас з конкретною задачею: зробити стильне, ергономічне житло під здачу в довгострокову оренду. При цьому потрібно було врахувати 2 важливих нюанси: не виходити за рамки бюджету та мінімально залучати самого замовника у процес, бо він майже весь час буде за кордоном. Через 4 місяці замовник повністю переконався у тому, що це можливо, навіть не знаходячись на об'єкті.

Етап 1. Прокладання трас кондиціонерів, штукатурка, прокладання кабелю

Етап 2. Гіпсокартонні роботи, укладання плитки, збірка електрощита, чорнова сантехніка

Етап 3. Підготовка поверхонь під фарбування, нівелірмаса

Етап 4. Фарбування, чистова сантехніка, чистова електрика, укладання вінілу
Детально про виконання робіт розповідали у цій статті, тому повторюватися не будемо. Приділимо більше уваги організаційним моментам.
Над управлінням кожним проектом працює команда з 4-х осіб: менеджер проєкту, виконроб, постачальник і кошторисник. Роботи виконуються силами 25-30 майстрів.
Менеджер проєкту
● Веде всю комунікацію із замовником.
● Забезпечує вирішення питань щодо проекту від виконроба.
● Організовує роботу команди.
● Відповідає за постачання чистових матеріалів та комплектуючих.
● Організовує роботу підрядників зі спеціалізованих робіт.
Виконроб
● Організовує роботу майстрів.
● Відповідає за якість та терміни виконання робіт.
● Складає заявки на чернові матеріали постачальнику.
● Аналізує проект щодо помилок і шукає обґрунтовані варіанти оптимізації. Передає інформацію менеджеру проєкту для погодження із замовником.
Відділ постачання
● Відповідає за організацію постачання всіх матеріалів на об'єкт. Веде переговори та створює партнерські відносини з постачальниками.
● Завдяки цьому ми надаємо частину нашої знижки на матеріали замовнику.
● Веде реєстри найкращих (так і не дуже якісних) матеріалів та комплектуючих.
Кошторисник
● Складає кошторис за готовим проєктом.
● Готує акти виконання робіт.
● Веде фінансову аналітику щодо кожного проєкту.
Замовник зазвичай спілкується тільки з менеджером проєкту. Якщо є бажання розібратись з технічними деталями, ми організовуємо додатково зустріч з виконробом і проходимось по кожному питанню в деталях. На цьому об'єкті все спілкування із замовником проходило віддалено та технічні деталі його мало цікавили.
Матеріали та комплектуючі
Матеріали ми ділимо на 2 великі групи: чистові та чорнові. Чистові – це все, що ми бачимо після ремонту. Чорнові – все, що приховано.
Чорнові на всіх об'єктах однакові. На практиці ми виробили перелік матеріалів з використанням, яких досягаємо високої якості та надійності.
Найменування
ГКЛВ (гіпсокартонний лист вологостійкий)
Шпаклівка для закладення стиків |
Марка
KNAUF 1200/2500/12,5 MM
SEMIN CE-86
SEMIN TOILE DE VERRE густина 45 гр/кв.М.
Полімермінеральна SEMIN LISSEUR (ETS 2)
Knauf Multifinish
Інтерʼєрна Kolorit Legenda
СТОУНЛАЙТ 100/200/600
Ceresit Грунт СТ-17, 10 літрів
KNAUF MP-75, мішок 30 кг
SILTEK PM-10, 25 kr
DOPS BASIS
Polimin ТП-5
Ceresit CR-65
ПОЛІПЛАСТ ПП-012
KIILTO
Кабелі ВВГнг Запорожский завод цветных металлов
Schneider Electric
Hager
Rehau Rautitan
Ostendorf
Чистові матеріали та комплектуючі на цьому об'єкті підбирали, виходячи з того, що бюджет був у пріоритеті. Купували все у середньому ціновому сегменті, ловили знижки, розумно заощаджували.
Матеріали, які використовували:
На чому можна і не можна економити
На цю тему написано купу статей та постів у Instagram, тому обмежимося основними тезами. Можна заощаджувати на чистових матеріалах, якщо це завдання допускає. Як, наприклад, у цій квартирі.
Не можна економити на комунікаціях та чорнових роботах. Тому що є можливість опинитися в ситуації, коли через економію в 10 тис. грн. через 3 роки почав пропускати воду трійник у стяжці та затопило сусідів. Або після встановлення шаф та кухні на примиканнях вийшли широкі та нерівномірні щілини, бо заощадили на штукатурці.
Висновок із досвіду 100+ проєктів: зробити відразу добре і забути про проблеми на довгі роки.
Меблі
М'які меблі, а також столи та стільці купили у JYSK. Кухню та шафи можна було замовити у меблевій компанії. Але стояло завдання на оптимізацію бюджету, тож діяли інакше.
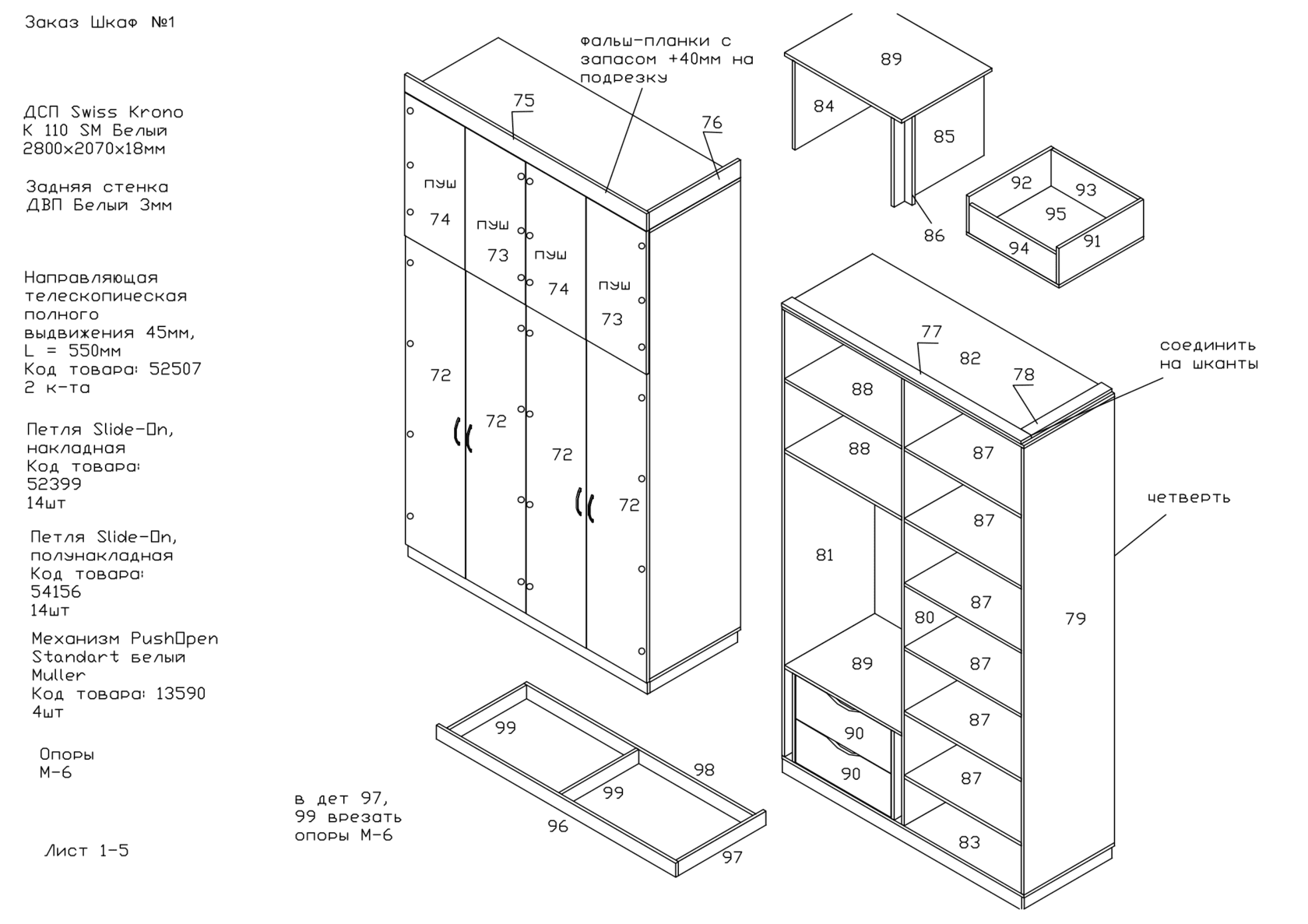
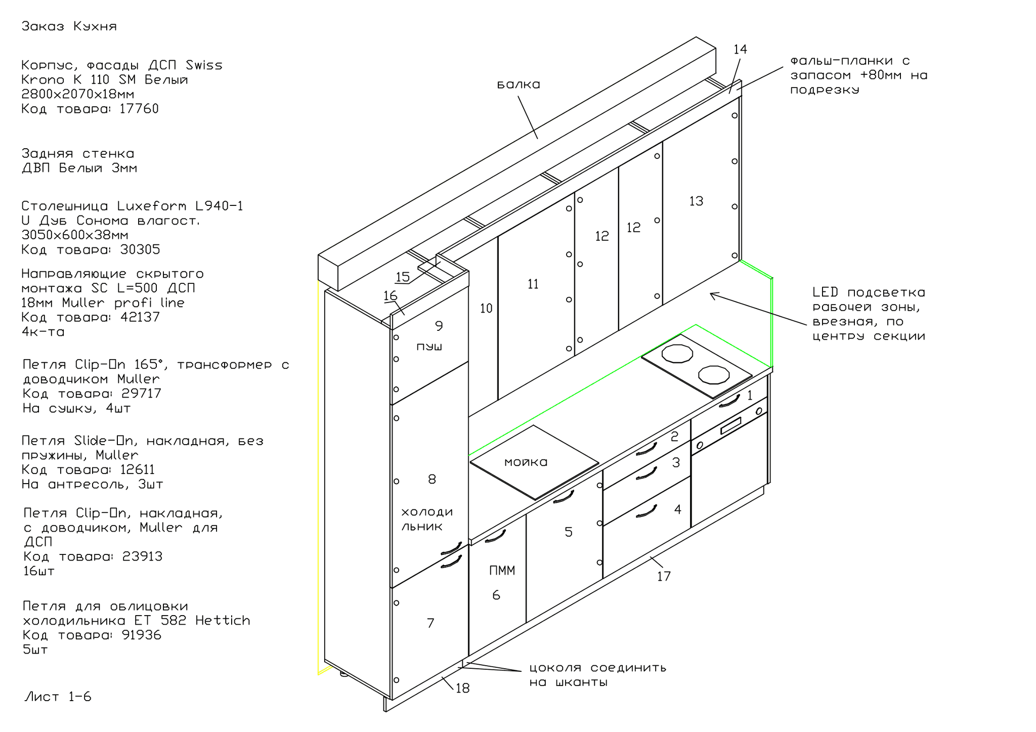
Знайшли конструктора меблів, дали йому вихідні дані — виміри з об'єкта і технічне завдання на шафи та кухню. Він розробив креслення, інструкції для збирачів та склав специфікацію всіх матеріалів, комплектуючих та кріплень, які потрібні.
Замовлення на всі матеріали оформили на порталі компанії «Віяр». Корпус та фасади були спроектовані з ДСП, а це найпростіший і найдоступніший матеріал, тому розпил зробили швидко. Через 1,5 тижня менеджер «Віяра» зателефонував та погодив дату доставки.
Коли тільки розмістили замовлення на матеріали та дізналися дати готовності, то одразу ж зв'язалися зі збирачами, які раніше працювали на кількох наших об'єктах та добре себе зарекомендували. Після постачання матеріалів без простою почали збирати меблі. За 3 дні майстри впоралися з роботою. Після цього ремонт було завершено. Як завжди, зробили клінінг та фінальний звіт про ремонт.
Вартість
Об'єкт ми здали влітку 2021 року, звичайно зараз його кошторис не актуальний. Тому нижче файл із кошторисом, приведеним до актуальних цін (лютий 2024 р.). Тобто, якби ми робили ремонт цієї квартири зараз, то він коштував би саме стільки.
Схема фінансування та етапи оплати
Працювали за нашою стандартною схемою: ремонт був поділений на 4 етапи та фінансувався поетапно. На кожен етап вноситься передоплата в розмірі вартості матеріалів, необхідних для виконання робіт. Оплата за роботи відбувається вже за фактом їх виконання. Таким чином, за весь ремонт замовник провів 8 платежів на реквізити нашої юридичної особи.
Результат
Всього за 4 місяці (1 місяць на проєкт, 3 на сам ремонт) ми зробили сучасний та надійний ремонт житла для довгострокової оренди для замовника, який весь час навіть не був на об'єкті. Як показує практика, якщо підійти розумно до всіх процесів, мати необхідні креслення та надійну команду, ремонт може пройти не тільки гладко, а й швидко. Саме увага до процессу, деталей та відповідальність перед замовником дозволяють команді Buildburo щоразу на 100% виконувати обіцяне та реалізовувати цивілізовані ремонти без зайвих клопотів для клієнта.
Прямо зараз ви можете відправити нам свій дизайн-проєкт на безкоштовний розрахунок чи зв'язатись, щоб отримати попередній розрахунок навіть без проєкту
Більше робіт
2020-2025
Більше робіт
2020-2025
2021
Як ми зробили сучасний ремонт у ЖК «Нова Англія» майже без участі самого замовника
Кейс по готовому об'єкту: етапи, сроки, матеріали та ціни. Описуємо весь процес ремонту квартири та розказуємо, як створити приємне житло, не виходячи за жорсткі рамки бюджету. Розмірковуємо про сам проєкт, організацію робіт, матеріали та меблі. Ділимось досвідом: на чому можна економити, а що вийде врешті решт тільки дорожче.
Місце
м. Київ, ЖК "Нова Англія"
Площа
37 м2
Кількість кімнат
1 кімната
Стиль
Сучасний
Тип будинку
Новобудова
Термін реалізації
3 місяця
Задача
Клієнт прийшов до нас з конкретною задачею: зробити стильне, ергономічне житло під здачу в довгострокову оренду. При цьому потрібно було врахувати 2 важливих нюанси: не виходити за рамки бюджету та мінімально залучати самого замовника у процес, бо він майже весь час буде за кордоном. Через 4 місяці замовник повністю переконався у тому, що це можливо, навіть не знаходячись на об'єкті.
Робота над проєктом
Коли йдеться про квартиру для здачі в оренду, немає сенсу розробляти повноцінний проект з візуалізаціями. Для цього є 2 причини:
Збільшуються сроки. Розробка повноцінного проекту займає 2,5-3 місяці.
Вартість повного проекту із візуалізаціями $30-$50/кв.м.
Для цієї задачі більш актуальна альтернатива — технічний проєкт або, як ми його називаємо, «комплект креслень». Це продумана інструкція для будівельників, у якій прописано, що і як саме повинно бути реалізовано. При цьому термін виконання комплекту креслень — усього 1 місяць, а вартість — $20-$30/кв. м.
Почали із планування. Забудовник створив досить вдале планування, тому ми навіть не передбачали демонтаж та монтаж стін, а лише детально опрацювали розміщення меблів.
На 37 квадратних метрах розташована кухня-вітальня (19 кв.м.), робоче місце на лоджії, окрема спальня (11 кв.м.), коридор і санвузол. Складним моментом був санвузол через невеликі розміри.
Планування квартири
Як і будь-який проєкт, ми почали з головної ідеї та концепту. Замовник хотів сучасний стиль та популярні рішення саме для оренди. Ми знайшли релевантні референси та створили декілька візуалізацій, щоб клієнт побачив ідеї та хід думок.
Такі візуалізації створюються швидко, ми їх називаємо one day project. Бо у випадку з індивідуальною розробкою проєктів це на порядок складніша та детальна візуалізація простору. У базовому варіанті дизайн-проєкту швидкі візуалізації справляються із задачею «показати концепт».
Квартиру зробили світлою, щоб візуально збільшити сприйняття маленької площі. Стіни пофарбували світло-сірою фарбою та використовували білі фасади кухні та шаф.
Доповнили кольорову гаму деревом теплого відтінку на підлозі та в елементах меблів. Таким чином створили основу інтер'єру лише з двох кольорів. Створювати атмосферу та розставляти акценти можна вже за допомогою декору. Після узгодження дизайну перейшли до розробки альбому креслень.

Макс Колот
Співзасновник Buildburo
У процесі розробки проекту обговорювали лише деякі ключові питання, за весь час проектування у нас із замовником було кілька відеодзвінків тривалістю 30-40 хвилин та листування у Telegram-чаті.
Клієнт не захотів вникати у деталі та довірив усі технічні рішення нам. Все було опрацьовано на кресленнях. Були розроблені плани та розгортки:
Як проходив ремонт
Кошторис
Ми працюємо за системою fixed price, тому кошторис розраховуємо точно та уважно. Якщо в процесі вилізуть моменти, які ми не врахували при розрахунку, то робимо їх власним коштом. Кошторис може змінюватися під час ремонту лише з ініціативи замовника, якщо замовник захоче щось додати чи змінити. Коли проєкт був готовий, ми підготували детальний кошторис.
Договір
Підготували та погодили договір на ремонт. У договорі фіксуються графік, строки та ціни, а також додається повний кошторис. Також закріплюються основні умови та гарантійний термін.
Виконання робіт
Клієнт прийшов до нас з конкретною задачею: зробити стильне, ергономічне житло під здачу в довгострокову оренду. При цьому потрібно було врахувати 2 важливих нюанси: не виходити за рамки бюджету та мінімально залучати самого замовника у процес, бо він майже весь час буде за кордоном. Через 4 місяці замовник повністю переконався у тому, що це можливо, навіть не знаходячись на об'єкті.

Етап 1. Прокладання трас кондиціонерів, штукатурка, прокладання кабелю

Етап 2. Гіпсокартонні роботи, укладання плитки, збірка електрощита, чорнова сантехніка

Етап 3. Підготовка поверхонь під фарбування, нівелірмаса

Етап 4. Фарбування, чистова сантехніка, чистова електрика, укладання вінілу
Детально про виконання робіт розповідали у цій статті, тому повторюватися не будемо. Приділимо більше уваги організаційним моментам.
Над управлінням кожним проектом працює команда з 4-х осіб: менеджер проєкту, виконроб, постачальник і кошторисник. Роботи виконуються силами 25-30 майстрів.
Менеджер проєкту
● Веде всю комунікацію із замовником.
● Забезпечує вирішення питань щодо проекту від виконроба.
● Організовує роботу команди.
● Відповідає за постачання чистових матеріалів та комплектуючих.
● Організовує роботу підрядників зі спеціалізованих робіт.
Виконроб
● Організовує роботу майстрів.
● Відповідає за якість та терміни виконання робіт.
● Складає заявки на чернові матеріали постачальнику.
● Аналізує проект щодо помилок і шукає обґрунтовані варіанти оптимізації. Передає інформацію менеджеру проєкту для погодження із замовником.
Відділ постачання
● Відповідає за організацію постачання всіх матеріалів на об'єкт. Веде переговори та створює партнерські відносини з постачальниками.
● Завдяки цьому ми надаємо частину нашої знижки на матеріали замовнику.
● Веде реєстри найкращих (так і не дуже якісних) матеріалів та комплектуючих.
Кошторисник
● Складає кошторис за готовим проєктом.
● Готує акти виконання робіт.
● Веде фінансову аналітику щодо кожного проєкту.
Замовник зазвичай спілкується тільки з менеджером проєкту. Якщо є бажання розібратись з технічними деталями, ми організовуємо додатково зустріч з виконробом і проходимось по кожному питанню в деталях. На цьому об'єкті все спілкування із замовником проходило віддалено та технічні деталі його мало цікавили.
Матеріали та комплектуючі
Матеріали ми ділимо на 2 великі групи: чистові та чорнові. Чистові – це все, що ми бачимо після ремонту. Чорнові – все, що приховано.
Чорнові на всіх об'єктах однакові. На практиці ми виробили перелік матеріалів з використанням, яких досягаємо високої якості та надійності.
Найменування
ГКЛВ (гіпсокартонний лист вологостійкий)
Шпаклівка для закладення стиків |
Марка
KNAUF 1200/2500/12,5 MM
SEMIN CE-86
SEMIN TOILE DE VERRE густина 45 гр/кв.М.
Полімермінеральна SEMIN LISSEUR (ETS 2)
Knauf Multifinish
Інтерʼєрна Kolorit Legenda
СТОУНЛАЙТ 100/200/600
Ceresit Грунт СТ-17, 10 літрів
KNAUF MP-75, мішок 30 кг
SILTEK PM-10, 25 kr
DOPS BASIS
Polimin ТП-5
Ceresit CR-65
ПОЛІПЛАСТ ПП-012
KIILTO
Кабелі ВВГнг Запорожский завод цветных металлов
Schneider Electric
Hager
Rehau Rautitan
Ostendorf
Чистові матеріали та комплектуючі на цьому об'єкті підбирали, виходячи з того, що бюджет був у пріоритеті. Купували все у середньому ціновому сегменті, ловили знижки, розумно заощаджували.
Матеріали, які використовували:
На чому можна і не можна економити
На цю тему написано купу статей та постів у Instagram, тому обмежимося основними тезами. Можна заощаджувати на чистових матеріалах, якщо це завдання допускає. Як, наприклад, у цій квартирі.
Не можна економити на комунікаціях та чорнових роботах. Тому що є можливість опинитися в ситуації, коли через економію в 10 тис. грн. через 3 роки почав пропускати воду трійник у стяжці та затопило сусідів. Або після встановлення шаф та кухні на примиканнях вийшли широкі та нерівномірні щілини, бо заощадили на штукатурці.
Висновок із досвіду 100+ проєктів: зробити відразу добре і забути про проблеми на довгі роки.
Меблі
М'які меблі, а також столи та стільці купили у JYSK. Кухню та шафи можна було замовити у меблевій компанії. Але стояло завдання на оптимізацію бюджету, тож діяли інакше.
Знайшли конструктора меблів, дали йому вихідні дані — виміри з об'єкта і технічне завдання на шафи та кухню. Він розробив креслення, інструкції для збирачів та склав специфікацію всіх матеріалів, комплектуючих та кріплень, які потрібні.
Замовлення на всі матеріали оформили на порталі компанії «Віяр». Корпус та фасади були спроектовані з ДСП, а це найпростіший і найдоступніший матеріал, тому розпил зробили швидко. Через 1,5 тижня менеджер «Віяра» зателефонував та погодив дату доставки.
Коли тільки розмістили замовлення на матеріали та дізналися дати готовності, то одразу ж зв'язалися зі збирачами, які раніше працювали на кількох наших об'єктах та добре себе зарекомендували. Після постачання матеріалів без простою почали збирати меблі. За 3 дні майстри впоралися з роботою. Після цього ремонт було завершено. Як завжди, зробили клінінг та фінальний звіт про ремонт.
Вартість
Об'єкт ми здали влітку 2021 року, звичайно зараз його кошторис не актуальний. Тому нижче файл із кошторисом, приведеним до актуальних цін (лютий 2024 р.). Тобто, якби ми робили ремонт цієї квартири зараз, то він коштував би саме стільки.
Схема фінансування та етапи оплати
Працювали за нашою стандартною схемою: ремонт був поділений на 4 етапи та фінансувався поетапно. На кожен етап вноситься передоплата в розмірі вартості матеріалів, необхідних для виконання робіт. Оплата за роботи відбувається вже за фактом їх виконання. Таким чином, за весь ремонт замовник провів 8 платежів на реквізити нашої юридичної особи.
Результат
Всього за 4 місяці (1 місяць на проєкт, 3 на сам ремонт) ми зробили сучасний та надійний ремонт житла для довгострокової оренди для замовника, який весь час навіть не був на об'єкті. Як показує практика, якщо підійти розумно до всіх процесів, мати необхідні креслення та надійну команду, ремонт може пройти не тільки гладко, а й швидко. Саме увага до процессу, деталей та відповідальність перед замовником дозволяють команді Buildburo щоразу на 100% виконувати обіцяне та реалізовувати цивілізовані ремонти без зайвих клопотів для клієнта.
Прямо зараз ви можете відправити нам свій дизайн-проєкт на безкоштовний розрахунок чи зв'язатись, щоб отримати попередній розрахунок навіть без проєкту
2021
Як ми зробили сучасний ремонт у ЖК «Нова Англія» майже без участі самого замовника
Кейс по готовому об'єкту: етапи, сроки, матеріали та ціни. Описуємо весь процес ремонту квартири та розказуємо, як створити приємне житло, не виходячи за жорсткі рамки бюджету. Розмірковуємо про сам проєкт, організацію робіт, матеріали та меблі. Ділимось досвідом: на чому можна економити, а що вийде врешті решт тільки дорожче.
Місце
м. Київ, ЖК "Нова Англія"
Площа
37 м2
Кількість кімнат
1 кімната
Стиль
Сучасний
Тип будинку
Новобудова
Термін реалізації
3 місяця
Задача
Клієнт прийшов до нас з конкретною задачею: зробити стильне, ергономічне житло під здачу в довгострокову оренду. При цьому потрібно було врахувати 2 важливих нюанси: не виходити за рамки бюджету та мінімально залучати самого замовника у процес, бо він майже весь час буде за кордоном. Через 4 місяці замовник повністю переконався у тому, що це можливо, навіть не знаходячись на об'єкті.
Робота над проєктом
Коли йдеться про квартиру для здачі в оренду, немає сенсу розробляти повноцінний проект з візуалізаціями. Для цього є 2 причини:
Збільшуються сроки. Розробка повноцінного проекту займає 2,5-3 місяці.
Вартість повного проекту із візуалізаціями $30-$50/кв.м.
Для цієї задачі більш актуальна альтернатива — технічний проєкт або, як ми його називаємо, «комплект креслень». Це продумана інструкція для будівельників, у якій прописано, що і як саме повинно бути реалізовано. При цьому термін виконання комплекту креслень — усього 1 місяць, а вартість — $20-$30/кв. м.
Почали із планування. Забудовник створив досить вдале планування, тому ми навіть не передбачали демонтаж та монтаж стін, а лише детально опрацювали розміщення меблів.
На 37 квадратних метрах розташована кухня-вітальня (19 кв.м.), робоче місце на лоджії, окрема спальня (11 кв.м.), коридор і санвузол. Складним моментом був санвузол через невеликі розміри.
Планування квартири
Як і будь-який проєкт, ми почали з головної ідеї та концепту. Замовник хотів сучасний стиль та популярні рішення саме для оренди. Ми знайшли релевантні референси та створили декілька візуалізацій, щоб клієнт побачив ідеї та хід думок.
Такі візуалізації створюються швидко, ми їх називаємо one day project. Бо у випадку з індивідуальною розробкою проєктів це на порядок складніша та детальна візуалізація простору. У базовому варіанті дизайн-проєкту швидкі візуалізації справляються із задачею «показати концепт».
Квартиру зробили світлою, щоб візуально збільшити сприйняття маленької площі. Стіни пофарбували світло-сірою фарбою та використовували білі фасади кухні та шаф.
Доповнили кольорову гаму деревом теплого відтінку на підлозі та в елементах меблів. Таким чином створили основу інтер'єру лише з двох кольорів. Створювати атмосферу та розставляти акценти можна вже за допомогою декору. Після узгодження дизайну перейшли до розробки альбому креслень.

Макс Колот
Співзасновник Buildburo
У процесі розробки проекту обговорювали лише деякі ключові питання, за весь час проектування у нас із замовником було кілька відеодзвінків тривалістю 30-40 хвилин та листування у Telegram-чаті.
Клієнт не захотів вникати у деталі та довірив усі технічні рішення нам. Все було опрацьовано на кресленнях. Були розроблені плани та розгортки:
Як проходив ремонт
Кошторис
Ми працюємо за системою fixed price, тому кошторис розраховуємо точно та уважно. Якщо в процесі вилізуть моменти, які ми не врахували при розрахунку, то робимо їх власним коштом. Кошторис може змінюватися під час ремонту лише з ініціативи замовника, якщо замовник захоче щось додати чи змінити. Коли проєкт був готовий, ми підготували детальний кошторис.
Договір
Підготували та погодили договір на ремонт. У договорі фіксуються графік, строки та ціни, а також додається повний кошторис. Також закріплюються основні умови та гарантійний термін.
Виконання робіт
Клієнт прийшов до нас з конкретною задачею: зробити стильне, ергономічне житло під здачу в довгострокову оренду. При цьому потрібно було врахувати 2 важливих нюанси: не виходити за рамки бюджету та мінімально залучати самого замовника у процес, бо він майже весь час буде за кордоном. Через 4 місяці замовник повністю переконався у тому, що це можливо, навіть не знаходячись на об'єкті.

Етап 1. Прокладання трас кондиціонерів, штукатурка, прокладання кабелю

Етап 2. Гіпсокартонні роботи, укладання плитки, збірка електрощита, чорнова сантехніка

Етап 3. Підготовка поверхонь під фарбування, нівелірмаса

Етап 4. Фарбування, чистова сантехніка, чистова електрика, укладання вінілу
Детально про виконання робіт розповідали у цій статті, тому повторюватися не будемо. Приділимо більше уваги організаційним моментам.
Над управлінням кожним проектом працює команда з 4-х осіб: менеджер проєкту, виконроб, постачальник і кошторисник. Роботи виконуються силами 25-30 майстрів.
Менеджер проєкту
● Веде всю комунікацію із замовником.
● Забезпечує вирішення питань щодо проекту від виконроба.
● Організовує роботу команди.
● Відповідає за постачання чистових матеріалів та комплектуючих.
● Організовує роботу підрядників зі спеціалізованих робіт.
Виконроб
● Організовує роботу майстрів.
● Відповідає за якість та терміни виконання робіт.
● Складає заявки на чернові матеріали постачальнику.
● Аналізує проект щодо помилок і шукає обґрунтовані варіанти оптимізації. Передає інформацію менеджеру проєкту для погодження із замовником.
Відділ постачання
● Відповідає за організацію постачання всіх матеріалів на об'єкт. Веде переговори та створює партнерські відносини з постачальниками.
● Завдяки цьому ми надаємо частину нашої знижки на матеріали замовнику.
● Веде реєстри найкращих (так і не дуже якісних) матеріалів та комплектуючих.
Кошторисник
● Складає кошторис за готовим проєктом.
● Готує акти виконання робіт.
● Веде фінансову аналітику щодо кожного проєкту.
Замовник зазвичай спілкується тільки з менеджером проєкту. Якщо є бажання розібратись з технічними деталями, ми організовуємо додатково зустріч з виконробом і проходимось по кожному питанню в деталях. На цьому об'єкті все спілкування із замовником проходило віддалено та технічні деталі його мало цікавили.
Матеріали та комплектуючі
Матеріали ми ділимо на 2 великі групи: чистові та чорнові. Чистові – це все, що ми бачимо після ремонту. Чорнові – все, що приховано.
Чорнові на всіх об'єктах однакові. На практиці ми виробили перелік матеріалів з використанням, яких досягаємо високої якості та надійності.
Найменування
ГКЛВ (гіпсокартонний лист вологостійкий)
Шпаклівка для закладення стиків |
Марка
KNAUF 1200/2500/12,5 MM
SEMIN CE-86
SEMIN TOILE DE VERRE густина 45 гр/кв.М.
Полімермінеральна SEMIN LISSEUR (ETS 2)
Knauf Multifinish
Інтерʼєрна Kolorit Legenda
СТОУНЛАЙТ 100/200/600
Ceresit Грунт СТ-17, 10 літрів
KNAUF MP-75, мішок 30 кг
SILTEK PM-10, 25 kr
DOPS BASIS
Polimin ТП-5
Ceresit CR-65
ПОЛІПЛАСТ ПП-012
KIILTO
Кабелі ВВГнг Запорожский завод цветных металлов
Schneider Electric
Hager
Rehau Rautitan
Ostendorf
Чистові матеріали та комплектуючі на цьому об'єкті підбирали, виходячи з того, що бюджет був у пріоритеті. Купували все у середньому ціновому сегменті, ловили знижки, розумно заощаджували.
Матеріали, які використовували:
На чому можна і не можна економити
На цю тему написано купу статей та постів у Instagram, тому обмежимося основними тезами. Можна заощаджувати на чистових матеріалах, якщо це завдання допускає. Як, наприклад, у цій квартирі.
Не можна економити на комунікаціях та чорнових роботах. Тому що є можливість опинитися в ситуації, коли через економію в 10 тис. грн. через 3 роки почав пропускати воду трійник у стяжці та затопило сусідів. Або після встановлення шаф та кухні на примиканнях вийшли широкі та нерівномірні щілини, бо заощадили на штукатурці.
Висновок із досвіду 100+ проєктів: зробити відразу добре і забути про проблеми на довгі роки.
Меблі
М'які меблі, а також столи та стільці купили у JYSK. Кухню та шафи можна було замовити у меблевій компанії. Але стояло завдання на оптимізацію бюджету, тож діяли інакше.
Знайшли конструктора меблів, дали йому вихідні дані — виміри з об'єкта і технічне завдання на шафи та кухню. Він розробив креслення, інструкції для збирачів та склав специфікацію всіх матеріалів, комплектуючих та кріплень, які потрібні.
Замовлення на всі матеріали оформили на порталі компанії «Віяр». Корпус та фасади були спроектовані з ДСП, а це найпростіший і найдоступніший матеріал, тому розпил зробили швидко. Через 1,5 тижня менеджер «Віяра» зателефонував та погодив дату доставки.
Коли тільки розмістили замовлення на матеріали та дізналися дати готовності, то одразу ж зв'язалися зі збирачами, які раніше працювали на кількох наших об'єктах та добре себе зарекомендували. Після постачання матеріалів без простою почали збирати меблі. За 3 дні майстри впоралися з роботою. Після цього ремонт було завершено. Як завжди, зробили клінінг та фінальний звіт про ремонт.
Вартість
Об'єкт ми здали влітку 2021 року, звичайно зараз його кошторис не актуальний. Тому нижче файл із кошторисом, приведеним до актуальних цін (лютий 2024 р.). Тобто, якби ми робили ремонт цієї квартири зараз, то він коштував би саме стільки.
Схема фінансування та етапи оплати
Працювали за нашою стандартною схемою: ремонт був поділений на 4 етапи та фінансувався поетапно. На кожен етап вноситься передоплата в розмірі вартості матеріалів, необхідних для виконання робіт. Оплата за роботи відбувається вже за фактом їх виконання. Таким чином, за весь ремонт замовник провів 8 платежів на реквізити нашої юридичної особи.
Результат
Всього за 4 місяці (1 місяць на проєкт, 3 на сам ремонт) ми зробили сучасний та надійний ремонт житла для довгострокової оренди для замовника, який весь час навіть не був на об'єкті. Як показує практика, якщо підійти розумно до всіх процесів, мати необхідні креслення та надійну команду, ремонт може пройти не тільки гладко, а й швидко. Саме увага до процессу, деталей та відповідальність перед замовником дозволяють команді Buildburo щоразу на 100% виконувати обіцяне та реалізовувати цивілізовані ремонти без зайвих клопотів для клієнта.
Прямо зараз ви можете відправити нам свій дизайн-проєкт на безкоштовний розрахунок чи зв'язатись, щоб отримати попередній розрахунок навіть без проєкту
















































