

2020
просп. Відрадний, 2
Сучасна 1-кімнатна квартира зі зручним плануванням
Місце
м. Київ, просп. Відрадний, 2
Площа
45 м2
Кількість кімнат
1 кімнати
Стиль
Сучасний
Тип будинку
Новобудова
Термін реалізації
3.5 місяця
Як пройшов ремонт
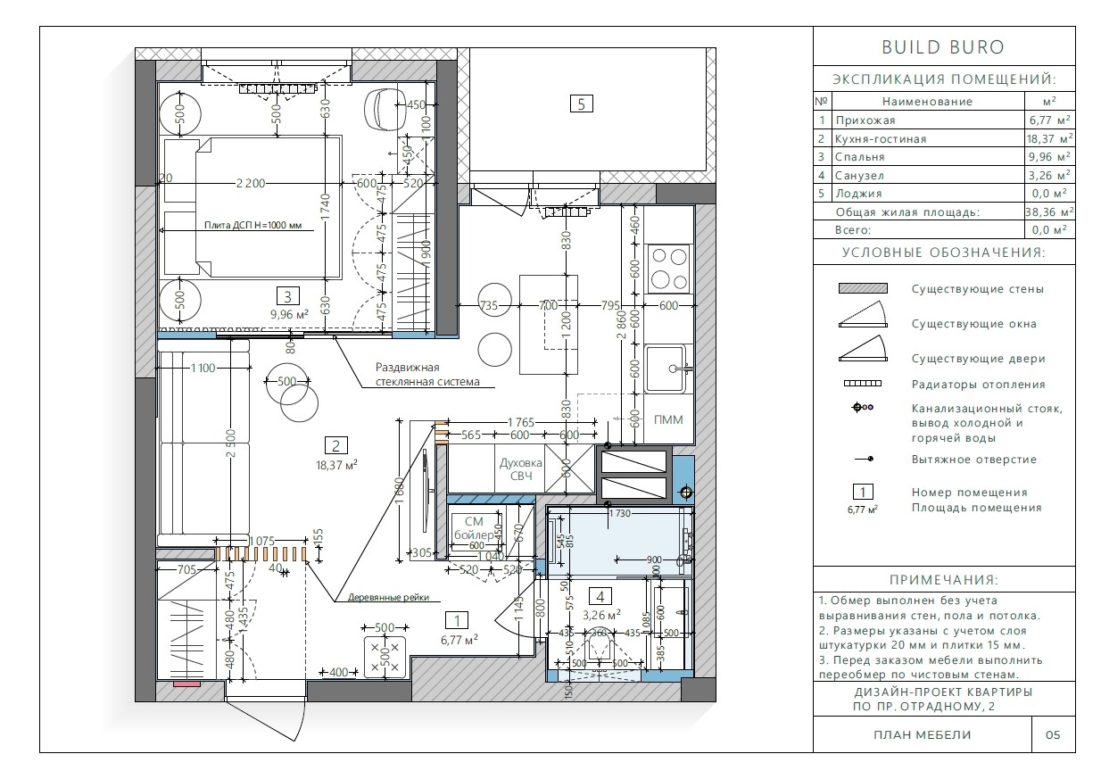
На цьому об'єкті було повністю перероблено стандартне планування від забудовника. На 45 кв.м. вийшло розмістити повноцінну спальню, кухню, вітальню та зробити багато місць для зберігання.
Схема розташування меблів за комплектом креслень
Об'єкт здавали Замовнику повністю готовим як на фото нижче: із вбудованими та м'якими меблями, побутовою технікою і декором.
Ось такою квартира вийшла в результаті:
Скільки все коштувало?
Відповідь на це найцікавіше питання ви можете знайти у нашому Калькуляторі.
Оздоблювальні матеріали:
Підлога:
ламінат в кімнатах: Eurohome Vario+ Sherwood Oak 5985 12mm AC4
плитка в санвузлах: PAMESA AT. EDGE CENIZA
Стіни:
гладкі пофарбовані в усіх кімнатах
плитка в санвузлах: APE TRENDY MIX,
Argenta Ceramica FLODSTEN ARTIC
Стелі:
Гіпсокартон, матове покриття бетону
Міжкімнатні двері:
ПАПА КАРЛО IDOORS PRIME
Унітаз: EGO Pride
Раковина: Cersanit Como
Змішувачі: REA Lungo Black
Строки реалізації:
Дата початку:
16.05.2020
Дата завершення:
31.08.2020
Загальний строк розробки комплекту креслень та ремонту - 108 календарних днів, рівно 3,5 місяці.
Прямо зараз ви можете відправити нам свій дизайн-проєкт на безкоштовний розрахунок чи зв'язатись, щоб отримати попередній розрахунок навіть без проєкту
Більше робіт
2020-2025
Більше робіт
2020-2025


2020
просп. Відрадний, 2
Сучасна 1-кімнатна квартира зі зручним плануванням
Місце
м. Київ, просп. Відрадний, 2
Площа
45 м2
Кількість кімнат
1 кімнати
Стиль
Сучасний
Тип будинку
Новобудова
Термін реалізації
3.5 місяця
Як пройшов ремонт
На цьому об'єкті було повністю перероблено стандартне планування від забудовника. На 45 кв.м. вийшло розмістити повноцінну спальню, кухню, вітальню та зробити багато місць для зберігання.
Схема розташування меблів за комплектом креслень
Об'єкт здавали Замовнику повністю готовим як на фото нижче: із вбудованими та м'якими меблями, побутовою технікою і декором.
Ось такою квартира вийшла в результаті:
Скільки все коштувало?
Відповідь на це найцікавіше питання ви можете знайти у нашому Калькуляторі.
Оздоблювальні матеріали:
Підлога:
ламінат в кімнатах: Eurohome Vario+ Sherwood Oak 5985 12mm AC4
плитка в санвузлах: PAMESA AT. EDGE CENIZA
Стіни:
гладкі пофарбовані в усіх кімнатах
плитка в санвузлах: APE TRENDY MIX,
Argenta Ceramica FLODSTEN ARTIC
Стелі:
Гіпсокартон, матове покриття бетону
Міжкімнатні двері:
ПАПА КАРЛО IDOORS PRIME
Унітаз: EGO Pride
Раковина: Cersanit Como
Змішувачі: REA Lungo Black
Строки реалізації:
Дата початку:
16.05.2020
Дата завершення:
31.08.2020
Загальний строк розробки комплекту креслень та ремонту - 108 календарних днів, рівно 3,5 місяці.
Прямо зараз ви можете відправити нам свій дизайн-проєкт на безкоштовний розрахунок чи зв'язатись, щоб отримати попередній розрахунок навіть без проєкту


2020
просп. Відрадний, 2
Сучасна 1-кімнатна квартира зі зручним плануванням
Місце
м. Київ, просп. Відрадний, 2
Площа
45 м2
Кількість кімнат
1 кімнати
Стиль
Сучасний
Тип будинку
Новобудова
Термін реалізації
3.5 місяця
Як пройшов ремонт
На цьому об'єкті було повністю перероблено стандартне планування від забудовника. На 45 кв.м. вийшло розмістити повноцінну спальню, кухню, вітальню та зробити багато місць для зберігання.
Схема розташування меблів за комплектом креслень
Об'єкт здавали Замовнику повністю готовим як на фото нижче: із вбудованими та м'якими меблями, побутовою технікою і декором.
Ось такою квартира вийшла в результаті:
Скільки все коштувало?
Відповідь на це найцікавіше питання ви можете знайти у нашому Калькуляторі.
Оздоблювальні матеріали:
Підлога:
ламінат в кімнатах: Eurohome Vario+ Sherwood Oak 5985 12mm AC4
плитка в санвузлах: PAMESA AT. EDGE CENIZA
Стіни:
гладкі пофарбовані в усіх кімнатах
плитка в санвузлах: APE TRENDY MIX,
Argenta Ceramica FLODSTEN ARTIC
Стелі:
Гіпсокартон, матове покриття бетону
Міжкімнатні двері:
ПАПА КАРЛО IDOORS PRIME
Унітаз: EGO Pride
Раковина: Cersanit Como
Змішувачі: REA Lungo Black
Строки реалізації:
Дата початку:
16.05.2020
Дата завершення:
31.08.2020
Загальний строк розробки комплекту креслень та ремонту - 108 календарних днів, рівно 3,5 місяці.
Прямо зараз ви можете відправити нам свій дизайн-проєкт на безкоштовний розрахунок чи зв'язатись, щоб отримати попередній розрахунок навіть без проєкту



















