
2019
Як ми зробили сучасний ремонт в квартирі під оренду і скільки це коштувало
З самої звичайної "напівмертвої" двушки вийшло стильне та комфортне помешкання. В хід пішли світло-сіра фарба, білі шафи до стелі та меблі з JYSK
Місце
м. Київ, Саперно-Слободська
Площа
59 м2
Кількість кімнат
2 кімнат
Стиль
Cкандинавський
Тип будинку
Вторинка
Термін реалізації
4 місяця
Стаття буде цікава тим, хто хоче зробити стильний, довговічний ремонт і не переплачувати. Опишемо всі етапи, лайфхаки та корисну інформацію, а в кінці покажемо, що скільки коштувало та поділимося зручними digital-інструментами для контролю ремонту.
Квартиру зробили світлою, щоб візуально збільшити сприйняття маленької площі. Стіни пофарбували світло-сірою фарбою та використовували білі фасади кухні та шаф.
Доповнили кольорову гаму деревом теплого відтінку на підлозі та в елементах меблів. Таким чином створили основу інтер'єру лише з двох кольорів. Створювати атмосферу та розставляти акценти можна вже за допомогою декору. Після узгодження дизайну перейшли до розробки альбому креслень.

Макс Колот
Співзасновник Buildburo
Замовник – активна ділова жінка, і більшість часу проводить поза Києвом, тому особисто займатися ремонтом і "бути виконробом" було неприйнятно. Необхідна була команда, яка візьме на себе повну реалізацію всіх етапів та не буде збільшувати вартість в процесі. Після погодження кошторису і коротких переговорів ми підписали папери та приступили.
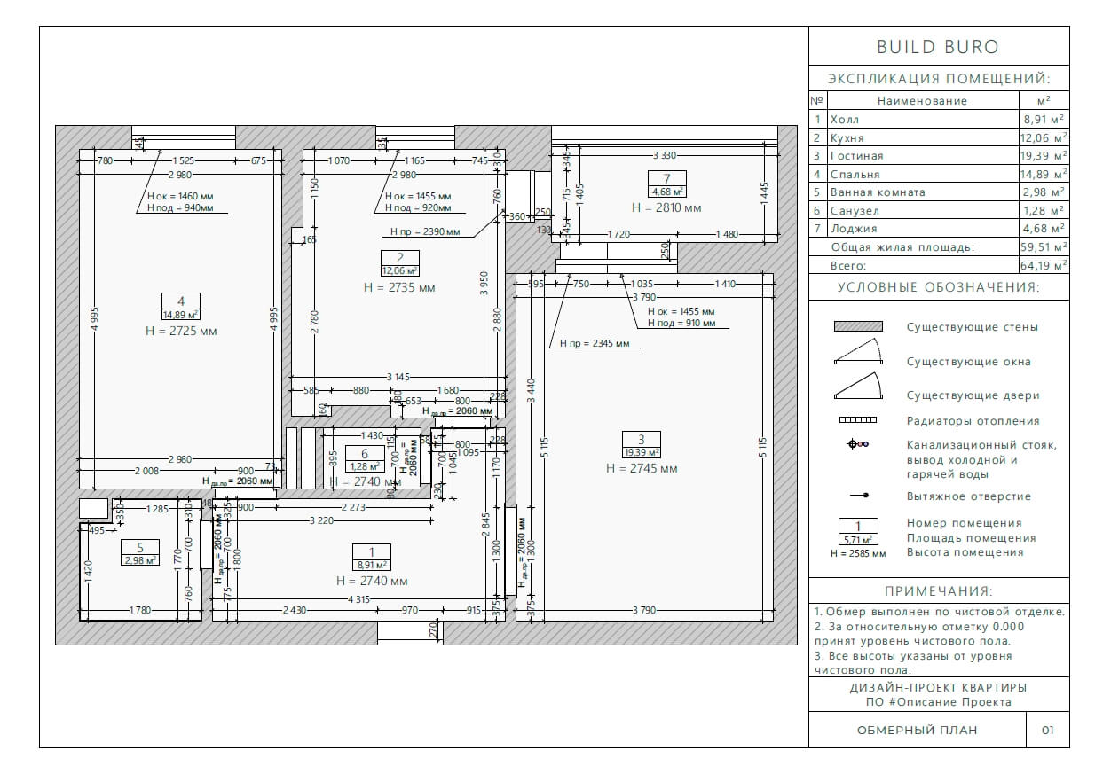
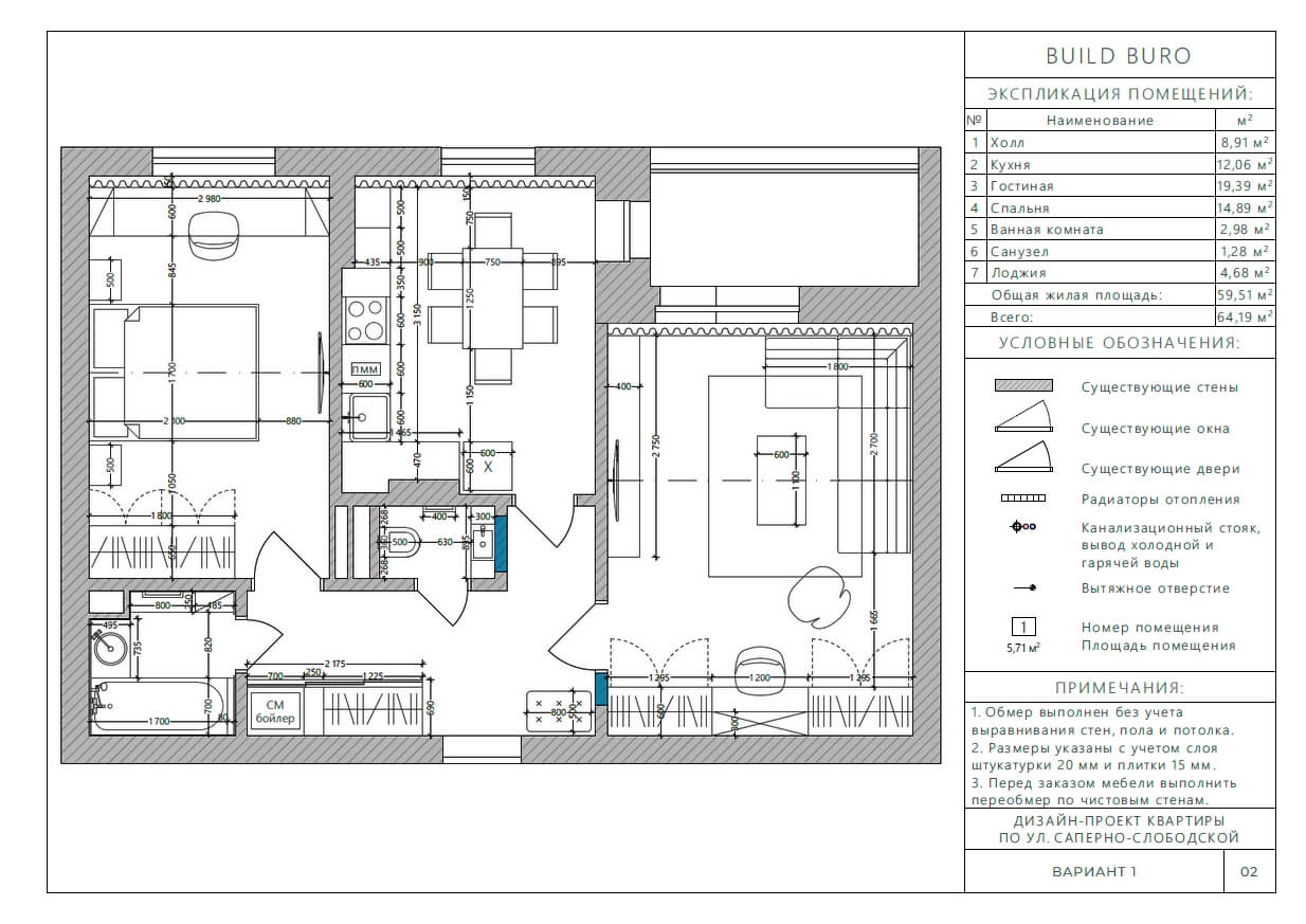
Етап 0. Розробка проєкту
Планування майже не міняли: тільки перенесли вхід в санвузол, щоб поставити раковину, і звузили дверний отвір в гостьову кімнату для встановлення вбудованої шафи.

Початкове планування

Узгоджене планування
В основу дизайну лягла проста концепція: комбінація скандинавського та сучасного стилів, світлі тони і натуральні матеріали, багато простору для зберігання. Але найголовніше - дизайн повинен був бути максимально стильним за наявності стислого бюджету.
Частіше за все на етапі створення проекту ми розробляємо тільки комплект робочих креслень, проте на цьому об'єкті Замовник контролювала ремонт віддалено, тому для простої комунікації та створення загального бачення кінцевого результату додатково були зроблені візуалізації.






Стосовно креслень: було розроблено мінімально необхідний комплект без деталізації технічних аспектів. Звичайно, в такому випадку виникають ризики щось проґавити або "накосячити" в процесі, але тут креслення потрібні були максимально швидко і на цей об'єкт ми сформували команду з перевірених роками майстрів, які знають, як робити добротно.

Іван Панасюк
Головний з управління проектами в Buildburo
Іноді до нас звертаються Замовники з готовими дизайн-проектами. Дуже часто буває, що ці проекти далеко не досконалі в плані опрацювання технічних аспектів, і нам доводиться їх доопрацьовувати та деталізувати. Звідси висновок: якщо замовляєте розробку проекту в одній компанії, а ремонтом буде займатися інша, вимагайте максимальне опрацювання технічного дизайну в кресленнях (електромонтажні схеми, схему водозабезпечення, схеми розкладки плитки та ін.).
Етап 1. Демонтаж
Ремонт повинен бути крутий як ззовні, так і в плані прихованих робіт. І якщо на чистових матеріалах можна оптимізувати бюджет, то на прихованих роботах економити ні в якому разі неможна. Планування майже не міняли: тільки перенесли вхід в санвузол, щоб поставити раковину, і звузили дверний отвір в гостьову кімнату для встановлення вбудованої шафи.
Приховані роботи
Це ті роботи, які ви не бачите і не можете перевірити після виконання чистової обробки (зведення стін, штукатурка, електрична та сантехнічна розводка і т.д.).
Тому найправильнішим рішенням по відношенню до старої штукатурки було повністю її збити перфоратором і зробити нову - гіпсову машинну. Це істотно збільшило бюджет, але було абсолютно необхідно.
Так виглядала квартира після завершення демонтажу та вивозу будівельного сміття:
У нас був скорочений бюджет, і економили ми як раз на чистових обробних матеріалах. Але тут також неможна передавати куті меду, щоб не вийшло візуально дешево і недовговічно. Ділимося списком бюджетних, але якісних і стильних матеріалів та комплектуючих:
Шумні роботи
Попереджайте сусідів про заплановані шумні роботи, такі як демонтаж. Можна розклеїти оголошення на поверсі або поговорити з консьєржем. Інакше прийдуть сваритися.
— з досвіду Кирила, головного виконроба в Buidburo
Етап 2. Штукатурка
Процес начебто й нескладний, проте є маса нюансів: організація доставки та підйому декількох тонн матеріалу і габаритного обладнання, підключення штукатурної станції до напруги 380В, дотримання технології під час виконання робіт і багато іншого. Ремонт повинен бути крутий як ззовні, так і в плані прихованих робіт. І якщо на чистових матеріалах можна оптимізувати бюджет, то на прихованих роботах економити ні в якому разі неможна. Планування майже не міняли: тільки перенесли вхід в санвузол, щоб поставити раковину, і звузили дверний отвір в гостьову кімнату для встановлення вбудованої шафи.
Ми чудово розуміємо, що наші замовники не хочуть перетворюватись на прорабів і витрачати на ремонт багато часу
Примикання
Їх складно робити, тому деякі штукатури не приділяють їм достатньо уваги. Огляньте примикання стін до стелі, шов під підвіконням. Обов'язково перевірте якість відкосів - між відкосами та вікном не повинно бути ніяких щілин.
Арматура і метал
До нанесення штукатурки весь метал має бути покритий грунтовкою, інакше потім на стінах проступить іржа. А після оштукатурювання необхідно вилучити маяки, інакше виникне той самий ефект - іржа.
Кути
Переконайтеся в тому, що кути, де буде встановлено меблі, зроблені під 90 градусів.
Площини
Відхилення по вертикалі та горизонталі на 1 метр не повинні перевищувати 2-3 мм. Максимальне відхилення по вертикалі на всю висоту - не більше 10 мм. Локальні нерівності, якщо вони є, не повинні бути глибше 3 мм.
Сміття
Сміття обов'язково має бути вивезено. Його дуже багато після закінчення штукатурних робіт, і воно заважає на наступних етапах.
Ось так виглядала свіжа, волога штукатурка. До речі, на цьому об'єкті цегляні стіни виявилися дуже кривими. Зазвичай шар маякової штукатурки складає 2-2.5 см, а тут місцями доходило і до 9 см. Через це стіни висихали біля двох тижнів, і це в теплу пору року. Тому найправильнішим рішенням щодо старої штукатурки було повністю її збити перфоратором і зробити нову - гіпсову машинну. Це істотно збільшило бюджет, але було абсолютно необхідно.
Так виглядала квартира після завершення демонтажу і вивозу будівельного сміття:






Дайте штукатурці повністю висохнути до того, як приступити до чистовых робіт. І не забудьте закласти трасу кондиціонеру до штукатурки, щоб потім не штробити зайве.
— з досвіду Кирила, головного виконроба в Buidburo
Етап 3. Чорнова електрика і сантехніка
"Чорнова" означає прихована, те, що ми не побачимо після закінчення ремонту. Монтаж сантехнічних точок, фітинги, розводка труб, прокладка кабелю, встановлення розподільних коробок і т.д.
Використовуйте лише найкращі матеріали та комплектуючі для цього етапу. Краще заплатити раз, ніж потім все ламати, переробляти та платити ще більше.
Дуже важлива інформація: кожним видом робіт має займатися профільний спеціаліст. Електрикою - електрик, сантехнікою - сантехнік, плиткою - плиточник. Коли наймаєте компанію на ремонт, прояснюйте це питання. Існують комплексні бригади, де всі вміють робити все – в такому випадку варто замислитися.
Також обов'язково контролюйте, щоб розміщення розеток і виводів сантехніки відповідало кресленням. Майстри іноді помиляються, і на цьому етапі їх ще можна швидко виправити.
Такий вигляд квартира мала після завершення етапу монтажу чорнової сантехніки та електрики:






Бажано перевіряти, як сантехніка витримує тиск, і продзвонити розетки та освітлення.
— з досвіду Кирила, головного виконроба в Buidburo
Етап 4. Чистова обробка
На цьому етапі формується фінальний зовнішній вигляд квартири. Всі роботи, які виконуються в процесі чистової обробки потребують підвищеної уваги виконавця та спеціаліста з технічного контролю. І тут вкрай важлива увага до дрібниць.
Жодний Замовник не захоче кожного дня дивитися на "косяки" робочих. Тому чистова обробка повинна виконуватися лише перевіреними майстрами. Малярів та плиточників хоча і багато, проте хороших - мало, тому й ціни у них високі.

Один з відеооглядів ремонту в процесі для Замовника
Які матеріали використовувалися?
Підллога
У всіх кімнатах німецький ламінат Classen, клас зносостійкості 32/АС4. На кухні зробили додаткове просочення швів герметиком. Санвузли - іспанський керамограніт PAMESA.
Стіни
Флізелінові шпалери, що миються, під фарбу та фарба Kolorit Legenda, що миється. Санвузли – той самий керамограніт, що і на підлозі, а також керамограніт під дерево Zeus Ceramica.
Стелі
Натяжні білі матові, с нішею під стельовий карниз. Чудове рішення - швидко, красиво і дешево, порівнюючи з іншими варіантами.
Чистова електрика
Розетки та вимикачі Schneider Electric, освітлення - світильники-бочонки з Епіцентру.
Чистова сантехніка
Унітаз та раковини Cersanit, ванна Kolo, змішувачі та душовий комплект Primera.
Етап 5 (фінальний). Чистова обробка
Більшу частину меблів купили в JYSK під час знижок. Ліжко Signal замовляли з Польші. Диван Blest купили на розпродажі. Матрац - Askona.
А ось кухню та вбудовані шафи робили на замовлення. Щоб обрати виробника, ми провели тендер, оцінювали по критеріям "Ціна" та "Строк доставки".

Техніку для кухні краще купувати в тій же компанії, де ви замовляли кухню. Так реально дешевше.
Підбір меблів розпочали орієнтовно в середині процесу ремонту. Це довгий та клопіткий процес. Взагалі, маючи затверджений дизайн-проект на руках, можна починати їздити по магазинах і на самому початку ремонту. Полюйте на знижки та акції, в цій сфері вони великі, тож можна реально зекономити до 30% від початкової вартості.
Замірника від кухонщиків можна запросити після штукатурки. Так не доведеться чекати кухню місяць після закінчення ремонту.
— з досвіду Кирила, головного виконроба в Buidburo
Результат
Останній тиждень ремонту був складним. Ще не всі меблі були встановлені, а орендатори вже знайшлися, тож треба було закінчувати швидше. Останні доробки, збір кухні та всіх меблів, клінінг, форс-мажори. Було важко, але ми впорались. І вклалися в початковий термін. А ще не перевищили бюджет.
Ось що у нас вийшло:











Скільки все коштувало?
Як і було обіцяно, наводимо структуру всіх витрат. Ціни станом на кінець 2019 року, тому зараз вони можуть бути неактуальними. Для розрахунку цін для вашого об'єкту використовуйте наш Калькулятор.
Загальна вартість ремонту:
444 551 грн.
Меблі техніка та інше:
Кухня - 35 800 грн.
Вбудовані шафи - 72 780 грн.
Техніка на кухню (варильна поверхня, духовка, витяжка, посудомийна машина) - 23 940 грн.
Двері - 33 400 грн.
Диван - 19 800 грн.
Інші меблі, техніка, аксесуари - 92 181 грн.
Разом: 277 901 грн.
Що НЕ входить у вартість:
Меблі
Побутова техніка
Декор
Digital-інструменти для контролю ремонту
Детально розглянемо цю тему в окремій статті в нашому Instagram, а зараз просто перерахуємо інструменти, що довели свою користь, які ми використовуємо на проєктах.
Особистий кабінет Замовника
Ми нещодавно запустили цю функцію и вже отримуємо позитивний фідбек від клієнтів.
Креслення, щотижневі звіти, статус виконання, деталі фінансування та контакти Керівника проекту - все тут і регулярно оновлюється.
Trello
Тут ми відслідковуємо всі задачі проекту. Списки, чек-листи, замітки і посилання.
Telegram
І найголовніший інструмент - Telegram.
Для кожного об'єкту у нас є своя група, де ми вирішуємо актуальні питання, ведемо облік витрат та координуємо діяльність всіх учасників проекту.
Ми поділилися з вами живим досвідом реалізації ремонту від початку і до кінця на цьому об'єкті. Сподіваємося, вам було цікаво і корисно. Слідкуйте за нашим Instagram, обіцяємо продовжувати ділитися цінною інформацією за темою.
До зустрічі!
Прямо зараз ви можете відправити нам свій дизайн-проєкт на безкоштовний розрахунок чи зв'язатись, щоб отримати попередній розрахунок навіть без проєкту
Більше робіт
2020-2025
Більше робіт
2020-2025
2019
Як ми зробили сучасний ремонт в квартирі під оренду і скільки це коштувало
З самої звичайної "напівмертвої" двушки вийшло стильне та комфортне помешкання. В хід пішли світло-сіра фарба, білі шафи до стелі та меблі з JYSK
Місце
м. Київ, Саперно-Слободська
Площа
59 м2
Кількість кімнат
2 кімнат
Стиль
Cкандинавський
Тип будинку
Вторинка
Термін реалізації
4 місяця
Стаття буде цікава тим, хто хоче зробити стильний, довговічний ремонт і не переплачувати. Опишемо всі етапи, лайфхаки та корисну інформацію, а в кінці покажемо, що скільки коштувало та поділимося зручними digital-інструментами для контролю ремонту.
Квартиру зробили світлою, щоб візуально збільшити сприйняття маленької площі. Стіни пофарбували світло-сірою фарбою та використовували білі фасади кухні та шаф.
Доповнили кольорову гаму деревом теплого відтінку на підлозі та в елементах меблів. Таким чином створили основу інтер'єру лише з двох кольорів. Створювати атмосферу та розставляти акценти можна вже за допомогою декору. Після узгодження дизайну перейшли до розробки альбому креслень.

Макс Колот
Співзасновник Buildburo
Замовник – активна ділова жінка, і більшість часу проводить поза Києвом, тому особисто займатися ремонтом і "бути виконробом" було неприйнятно. Необхідна була команда, яка візьме на себе повну реалізацію всіх етапів та не буде збільшувати вартість в процесі. Після погодження кошторису і коротких переговорів ми підписали папери та приступили.
Етап 0. Розробка проєкту
Планування майже не міняли: тільки перенесли вхід в санвузол, щоб поставити раковину, і звузили дверний отвір в гостьову кімнату для встановлення вбудованої шафи.

Початкове планування

Узгоджене планування
В основу дизайну лягла проста концепція: комбінація скандинавського та сучасного стилів, світлі тони і натуральні матеріали, багато простору для зберігання. Але найголовніше - дизайн повинен був бути максимально стильним за наявності стислого бюджету.
Частіше за все на етапі створення проекту ми розробляємо тільки комплект робочих креслень, проте на цьому об'єкті Замовник контролювала ремонт віддалено, тому для простої комунікації та створення загального бачення кінцевого результату додатково були зроблені візуалізації.






Стосовно креслень: було розроблено мінімально необхідний комплект без деталізації технічних аспектів. Звичайно, в такому випадку виникають ризики щось проґавити або "накосячити" в процесі, але тут креслення потрібні були максимально швидко і на цей об'єкт ми сформували команду з перевірених роками майстрів, які знають, як робити добротно.

Іван Панасюк
Головний з управління проектами в Buildburo
Іноді до нас звертаються Замовники з готовими дизайн-проектами. Дуже часто буває, що ці проекти далеко не досконалі в плані опрацювання технічних аспектів, і нам доводиться їх доопрацьовувати та деталізувати. Звідси висновок: якщо замовляєте розробку проекту в одній компанії, а ремонтом буде займатися інша, вимагайте максимальне опрацювання технічного дизайну в кресленнях (електромонтажні схеми, схему водозабезпечення, схеми розкладки плитки та ін.).
Етап 1. Демонтаж
Ремонт повинен бути крутий як ззовні, так і в плані прихованих робіт. І якщо на чистових матеріалах можна оптимізувати бюджет, то на прихованих роботах економити ні в якому разі неможна. Планування майже не міняли: тільки перенесли вхід в санвузол, щоб поставити раковину, і звузили дверний отвір в гостьову кімнату для встановлення вбудованої шафи.
Приховані роботи
Це ті роботи, які ви не бачите і не можете перевірити після виконання чистової обробки (зведення стін, штукатурка, електрична та сантехнічна розводка і т.д.).
Тому найправильнішим рішенням по відношенню до старої штукатурки було повністю її збити перфоратором і зробити нову - гіпсову машинну. Це істотно збільшило бюджет, але було абсолютно необхідно.
Так виглядала квартира після завершення демонтажу та вивозу будівельного сміття:
У нас був скорочений бюджет, і економили ми як раз на чистових обробних матеріалах. Але тут також неможна передавати куті меду, щоб не вийшло візуально дешево і недовговічно. Ділимося списком бюджетних, але якісних і стильних матеріалів та комплектуючих:
Шумні роботи
Попереджайте сусідів про заплановані шумні роботи, такі як демонтаж. Можна розклеїти оголошення на поверсі або поговорити з консьєржем. Інакше прийдуть сваритися.
— з досвіду Кирила, головного виконроба в Buidburo
Етап 2. Штукатурка
Процес начебто й нескладний, проте є маса нюансів: організація доставки та підйому декількох тонн матеріалу і габаритного обладнання, підключення штукатурної станції до напруги 380В, дотримання технології під час виконання робіт і багато іншого. Ремонт повинен бути крутий як ззовні, так і в плані прихованих робіт. І якщо на чистових матеріалах можна оптимізувати бюджет, то на прихованих роботах економити ні в якому разі неможна. Планування майже не міняли: тільки перенесли вхід в санвузол, щоб поставити раковину, і звузили дверний отвір в гостьову кімнату для встановлення вбудованої шафи.
Ми чудово розуміємо, що наші замовники не хочуть перетворюватись на прорабів і витрачати на ремонт багато часу
Примикання
Їх складно робити, тому деякі штукатури не приділяють їм достатньо уваги. Огляньте примикання стін до стелі, шов під підвіконням. Обов'язково перевірте якість відкосів - між відкосами та вікном не повинно бути ніяких щілин.
Арматура і метал
До нанесення штукатурки весь метал має бути покритий грунтовкою, інакше потім на стінах проступить іржа. А після оштукатурювання необхідно вилучити маяки, інакше виникне той самий ефект - іржа.
Кути
Переконайтеся в тому, що кути, де буде встановлено меблі, зроблені під 90 градусів.
Площини
Відхилення по вертикалі та горизонталі на 1 метр не повинні перевищувати 2-3 мм. Максимальне відхилення по вертикалі на всю висоту - не більше 10 мм. Локальні нерівності, якщо вони є, не повинні бути глибше 3 мм.
Сміття
Сміття обов'язково має бути вивезено. Його дуже багато після закінчення штукатурних робіт, і воно заважає на наступних етапах.
Ось так виглядала свіжа, волога штукатурка. До речі, на цьому об'єкті цегляні стіни виявилися дуже кривими. Зазвичай шар маякової штукатурки складає 2-2.5 см, а тут місцями доходило і до 9 см. Через це стіни висихали біля двох тижнів, і це в теплу пору року. Тому найправильнішим рішенням щодо старої штукатурки було повністю її збити перфоратором і зробити нову - гіпсову машинну. Це істотно збільшило бюджет, але було абсолютно необхідно.
Так виглядала квартира після завершення демонтажу і вивозу будівельного сміття:






Дайте штукатурці повністю висохнути до того, як приступити до чистовых робіт. І не забудьте закласти трасу кондиціонеру до штукатурки, щоб потім не штробити зайве.
— з досвіду Кирила, головного виконроба в Buidburo
Етап 3. Чорнова електрика і сантехніка
"Чорнова" означає прихована, те, що ми не побачимо після закінчення ремонту. Монтаж сантехнічних точок, фітинги, розводка труб, прокладка кабелю, встановлення розподільних коробок і т.д.
Використовуйте лише найкращі матеріали та комплектуючі для цього етапу. Краще заплатити раз, ніж потім все ламати, переробляти та платити ще більше.
Дуже важлива інформація: кожним видом робіт має займатися профільний спеціаліст. Електрикою - електрик, сантехнікою - сантехнік, плиткою - плиточник. Коли наймаєте компанію на ремонт, прояснюйте це питання. Існують комплексні бригади, де всі вміють робити все – в такому випадку варто замислитися.
Також обов'язково контролюйте, щоб розміщення розеток і виводів сантехніки відповідало кресленням. Майстри іноді помиляються, і на цьому етапі їх ще можна швидко виправити.
Такий вигляд квартира мала після завершення етапу монтажу чорнової сантехніки та електрики:






Бажано перевіряти, як сантехніка витримує тиск, і продзвонити розетки та освітлення.
— з досвіду Кирила, головного виконроба в Buidburo
Етап 4. Чистова обробка
На цьому етапі формується фінальний зовнішній вигляд квартири. Всі роботи, які виконуються в процесі чистової обробки потребують підвищеної уваги виконавця та спеціаліста з технічного контролю. І тут вкрай важлива увага до дрібниць.
Жодний Замовник не захоче кожного дня дивитися на "косяки" робочих. Тому чистова обробка повинна виконуватися лише перевіреними майстрами. Малярів та плиточників хоча і багато, проте хороших - мало, тому й ціни у них високі.

Один з відеооглядів ремонту в процесі для Замовника
Які матеріали використовувалися?
Підллога
У всіх кімнатах німецький ламінат Classen, клас зносостійкості 32/АС4. На кухні зробили додаткове просочення швів герметиком. Санвузли - іспанський керамограніт PAMESA.
Стіни
Флізелінові шпалери, що миються, під фарбу та фарба Kolorit Legenda, що миється. Санвузли – той самий керамограніт, що і на підлозі, а також керамограніт під дерево Zeus Ceramica.
Стелі
Натяжні білі матові, с нішею під стельовий карниз. Чудове рішення - швидко, красиво і дешево, порівнюючи з іншими варіантами.
Чистова електрика
Розетки та вимикачі Schneider Electric, освітлення - світильники-бочонки з Епіцентру.
Чистова сантехніка
Унітаз та раковини Cersanit, ванна Kolo, змішувачі та душовий комплект Primera.
Етап 5 (фінальний). Чистова обробка
Більшу частину меблів купили в JYSK під час знижок. Ліжко Signal замовляли з Польші. Диван Blest купили на розпродажі. Матрац - Askona.
А ось кухню та вбудовані шафи робили на замовлення. Щоб обрати виробника, ми провели тендер, оцінювали по критеріям "Ціна" та "Строк доставки".

Техніку для кухні краще купувати в тій же компанії, де ви замовляли кухню. Так реально дешевше.
Підбір меблів розпочали орієнтовно в середині процесу ремонту. Це довгий та клопіткий процес. Взагалі, маючи затверджений дизайн-проект на руках, можна починати їздити по магазинах і на самому початку ремонту. Полюйте на знижки та акції, в цій сфері вони великі, тож можна реально зекономити до 30% від початкової вартості.
Замірника від кухонщиків можна запросити після штукатурки. Так не доведеться чекати кухню місяць після закінчення ремонту.
— з досвіду Кирила, головного виконроба в Buidburo
Результат
Останній тиждень ремонту був складним. Ще не всі меблі були встановлені, а орендатори вже знайшлися, тож треба було закінчувати швидше. Останні доробки, збір кухні та всіх меблів, клінінг, форс-мажори. Було важко, але ми впорались. І вклалися в початковий термін. А ще не перевищили бюджет.
Ось що у нас вийшло:











Скільки все коштувало?
Як і було обіцяно, наводимо структуру всіх витрат. Ціни станом на кінець 2019 року, тому зараз вони можуть бути неактуальними. Для розрахунку цін для вашого об'єкту використовуйте наш Калькулятор.
Загальна вартість ремонту:
444 551 грн.
Меблі техніка та інше:
Кухня - 35 800 грн.
Вбудовані шафи - 72 780 грн.
Техніка на кухню (варильна поверхня, духовка, витяжка, посудомийна машина) - 23 940 грн.
Двері - 33 400 грн.
Диван - 19 800 грн.
Інші меблі, техніка, аксесуари - 92 181 грн.
Разом: 277 901 грн.
Що НЕ входить у вартість:
Меблі
Побутова техніка
Декор
Digital-інструменти для контролю ремонту
Детально розглянемо цю тему в окремій статті в нашому Instagram, а зараз просто перерахуємо інструменти, що довели свою користь, які ми використовуємо на проєктах.
Особистий кабінет Замовника
Ми нещодавно запустили цю функцію и вже отримуємо позитивний фідбек від клієнтів.
Креслення, щотижневі звіти, статус виконання, деталі фінансування та контакти Керівника проекту - все тут і регулярно оновлюється.
Trello
Тут ми відслідковуємо всі задачі проекту. Списки, чек-листи, замітки і посилання.
Telegram
І найголовніший інструмент - Telegram.
Для кожного об'єкту у нас є своя група, де ми вирішуємо актуальні питання, ведемо облік витрат та координуємо діяльність всіх учасників проекту.
Ми поділилися з вами живим досвідом реалізації ремонту від початку і до кінця на цьому об'єкті. Сподіваємося, вам було цікаво і корисно. Слідкуйте за нашим Instagram, обіцяємо продовжувати ділитися цінною інформацією за темою.
До зустрічі!
Прямо зараз ви можете відправити нам свій дизайн-проєкт на безкоштовний розрахунок чи зв'язатись, щоб отримати попередній розрахунок навіть без проєкту
2019
Як ми зробили сучасний ремонт в квартирі під оренду і скільки це коштувало
З самої звичайної "напівмертвої" двушки вийшло стильне та комфортне помешкання. В хід пішли світло-сіра фарба, білі шафи до стелі та меблі з JYSK
Місце
м. Київ, Саперно-Слободська
Площа
59 м2
Кількість кімнат
2 кімнат
Стиль
Cкандинавський
Тип будинку
Вторинка
Термін реалізації
4 місяця
Стаття буде цікава тим, хто хоче зробити стильний, довговічний ремонт і не переплачувати. Опишемо всі етапи, лайфхаки та корисну інформацію, а в кінці покажемо, що скільки коштувало та поділимося зручними digital-інструментами для контролю ремонту.
Квартиру зробили світлою, щоб візуально збільшити сприйняття маленької площі. Стіни пофарбували світло-сірою фарбою та використовували білі фасади кухні та шаф.
Доповнили кольорову гаму деревом теплого відтінку на підлозі та в елементах меблів. Таким чином створили основу інтер'єру лише з двох кольорів. Створювати атмосферу та розставляти акценти можна вже за допомогою декору. Після узгодження дизайну перейшли до розробки альбому креслень.

Макс Колот
Співзасновник Buildburo
Замовник – активна ділова жінка, і більшість часу проводить поза Києвом, тому особисто займатися ремонтом і "бути виконробом" було неприйнятно. Необхідна була команда, яка візьме на себе повну реалізацію всіх етапів та не буде збільшувати вартість в процесі. Після погодження кошторису і коротких переговорів ми підписали папери та приступили.
Етап 0. Розробка проєкту
Планування майже не міняли: тільки перенесли вхід в санвузол, щоб поставити раковину, і звузили дверний отвір в гостьову кімнату для встановлення вбудованої шафи.

Початкове планування

Узгоджене планування
В основу дизайну лягла проста концепція: комбінація скандинавського та сучасного стилів, світлі тони і натуральні матеріали, багато простору для зберігання. Але найголовніше - дизайн повинен був бути максимально стильним за наявності стислого бюджету.
Частіше за все на етапі створення проекту ми розробляємо тільки комплект робочих креслень, проте на цьому об'єкті Замовник контролювала ремонт віддалено, тому для простої комунікації та створення загального бачення кінцевого результату додатково були зроблені візуалізації.






Стосовно креслень: було розроблено мінімально необхідний комплект без деталізації технічних аспектів. Звичайно, в такому випадку виникають ризики щось проґавити або "накосячити" в процесі, але тут креслення потрібні були максимально швидко і на цей об'єкт ми сформували команду з перевірених роками майстрів, які знають, як робити добротно.

Іван Панасюк
Головний з управління проектами в Buildburo
Іноді до нас звертаються Замовники з готовими дизайн-проектами. Дуже часто буває, що ці проекти далеко не досконалі в плані опрацювання технічних аспектів, і нам доводиться їх доопрацьовувати та деталізувати. Звідси висновок: якщо замовляєте розробку проекту в одній компанії, а ремонтом буде займатися інша, вимагайте максимальне опрацювання технічного дизайну в кресленнях (електромонтажні схеми, схему водозабезпечення, схеми розкладки плитки та ін.).
Етап 1. Демонтаж
Ремонт повинен бути крутий як ззовні, так і в плані прихованих робіт. І якщо на чистових матеріалах можна оптимізувати бюджет, то на прихованих роботах економити ні в якому разі неможна. Планування майже не міняли: тільки перенесли вхід в санвузол, щоб поставити раковину, і звузили дверний отвір в гостьову кімнату для встановлення вбудованої шафи.
Приховані роботи
Це ті роботи, які ви не бачите і не можете перевірити після виконання чистової обробки (зведення стін, штукатурка, електрична та сантехнічна розводка і т.д.).
Тому найправильнішим рішенням по відношенню до старої штукатурки було повністю її збити перфоратором і зробити нову - гіпсову машинну. Це істотно збільшило бюджет, але було абсолютно необхідно.
Так виглядала квартира після завершення демонтажу та вивозу будівельного сміття:
У нас був скорочений бюджет, і економили ми як раз на чистових обробних матеріалах. Але тут також неможна передавати куті меду, щоб не вийшло візуально дешево і недовговічно. Ділимося списком бюджетних, але якісних і стильних матеріалів та комплектуючих:
Шумні роботи
Попереджайте сусідів про заплановані шумні роботи, такі як демонтаж. Можна розклеїти оголошення на поверсі або поговорити з консьєржем. Інакше прийдуть сваритися.
— з досвіду Кирила, головного виконроба в Buidburo
Етап 2. Штукатурка
Процес начебто й нескладний, проте є маса нюансів: організація доставки та підйому декількох тонн матеріалу і габаритного обладнання, підключення штукатурної станції до напруги 380В, дотримання технології під час виконання робіт і багато іншого. Ремонт повинен бути крутий як ззовні, так і в плані прихованих робіт. І якщо на чистових матеріалах можна оптимізувати бюджет, то на прихованих роботах економити ні в якому разі неможна. Планування майже не міняли: тільки перенесли вхід в санвузол, щоб поставити раковину, і звузили дверний отвір в гостьову кімнату для встановлення вбудованої шафи.
Ми чудово розуміємо, що наші замовники не хочуть перетворюватись на прорабів і витрачати на ремонт багато часу
Примикання
Їх складно робити, тому деякі штукатури не приділяють їм достатньо уваги. Огляньте примикання стін до стелі, шов під підвіконням. Обов'язково перевірте якість відкосів - між відкосами та вікном не повинно бути ніяких щілин.
Арматура і метал
До нанесення штукатурки весь метал має бути покритий грунтовкою, інакше потім на стінах проступить іржа. А після оштукатурювання необхідно вилучити маяки, інакше виникне той самий ефект - іржа.
Кути
Переконайтеся в тому, що кути, де буде встановлено меблі, зроблені під 90 градусів.
Площини
Відхилення по вертикалі та горизонталі на 1 метр не повинні перевищувати 2-3 мм. Максимальне відхилення по вертикалі на всю висоту - не більше 10 мм. Локальні нерівності, якщо вони є, не повинні бути глибше 3 мм.
Сміття
Сміття обов'язково має бути вивезено. Його дуже багато після закінчення штукатурних робіт, і воно заважає на наступних етапах.
Ось так виглядала свіжа, волога штукатурка. До речі, на цьому об'єкті цегляні стіни виявилися дуже кривими. Зазвичай шар маякової штукатурки складає 2-2.5 см, а тут місцями доходило і до 9 см. Через це стіни висихали біля двох тижнів, і це в теплу пору року. Тому найправильнішим рішенням щодо старої штукатурки було повністю її збити перфоратором і зробити нову - гіпсову машинну. Це істотно збільшило бюджет, але було абсолютно необхідно.
Так виглядала квартира після завершення демонтажу і вивозу будівельного сміття:






Дайте штукатурці повністю висохнути до того, як приступити до чистовых робіт. І не забудьте закласти трасу кондиціонеру до штукатурки, щоб потім не штробити зайве.
— з досвіду Кирила, головного виконроба в Buidburo
Етап 3. Чорнова електрика і сантехніка
"Чорнова" означає прихована, те, що ми не побачимо після закінчення ремонту. Монтаж сантехнічних точок, фітинги, розводка труб, прокладка кабелю, встановлення розподільних коробок і т.д.
Використовуйте лише найкращі матеріали та комплектуючі для цього етапу. Краще заплатити раз, ніж потім все ламати, переробляти та платити ще більше.
Дуже важлива інформація: кожним видом робіт має займатися профільний спеціаліст. Електрикою - електрик, сантехнікою - сантехнік, плиткою - плиточник. Коли наймаєте компанію на ремонт, прояснюйте це питання. Існують комплексні бригади, де всі вміють робити все – в такому випадку варто замислитися.
Також обов'язково контролюйте, щоб розміщення розеток і виводів сантехніки відповідало кресленням. Майстри іноді помиляються, і на цьому етапі їх ще можна швидко виправити.
Такий вигляд квартира мала після завершення етапу монтажу чорнової сантехніки та електрики:






Бажано перевіряти, як сантехніка витримує тиск, і продзвонити розетки та освітлення.
— з досвіду Кирила, головного виконроба в Buidburo
Етап 4. Чистова обробка
На цьому етапі формується фінальний зовнішній вигляд квартири. Всі роботи, які виконуються в процесі чистової обробки потребують підвищеної уваги виконавця та спеціаліста з технічного контролю. І тут вкрай важлива увага до дрібниць.
Жодний Замовник не захоче кожного дня дивитися на "косяки" робочих. Тому чистова обробка повинна виконуватися лише перевіреними майстрами. Малярів та плиточників хоча і багато, проте хороших - мало, тому й ціни у них високі.

Один з відеооглядів ремонту в процесі для Замовника
Які матеріали використовувалися?
Підллога
У всіх кімнатах німецький ламінат Classen, клас зносостійкості 32/АС4. На кухні зробили додаткове просочення швів герметиком. Санвузли - іспанський керамограніт PAMESA.
Стіни
Флізелінові шпалери, що миються, під фарбу та фарба Kolorit Legenda, що миється. Санвузли – той самий керамограніт, що і на підлозі, а також керамограніт під дерево Zeus Ceramica.
Стелі
Натяжні білі матові, с нішею під стельовий карниз. Чудове рішення - швидко, красиво і дешево, порівнюючи з іншими варіантами.
Чистова електрика
Розетки та вимикачі Schneider Electric, освітлення - світильники-бочонки з Епіцентру.
Чистова сантехніка
Унітаз та раковини Cersanit, ванна Kolo, змішувачі та душовий комплект Primera.
Етап 5 (фінальний). Чистова обробка
Більшу частину меблів купили в JYSK під час знижок. Ліжко Signal замовляли з Польші. Диван Blest купили на розпродажі. Матрац - Askona.
А ось кухню та вбудовані шафи робили на замовлення. Щоб обрати виробника, ми провели тендер, оцінювали по критеріям "Ціна" та "Строк доставки".

Техніку для кухні краще купувати в тій же компанії, де ви замовляли кухню. Так реально дешевше.
Підбір меблів розпочали орієнтовно в середині процесу ремонту. Це довгий та клопіткий процес. Взагалі, маючи затверджений дизайн-проект на руках, можна починати їздити по магазинах і на самому початку ремонту. Полюйте на знижки та акції, в цій сфері вони великі, тож можна реально зекономити до 30% від початкової вартості.
Замірника від кухонщиків можна запросити після штукатурки. Так не доведеться чекати кухню місяць після закінчення ремонту.
— з досвіду Кирила, головного виконроба в Buidburo
Результат
Останній тиждень ремонту був складним. Ще не всі меблі були встановлені, а орендатори вже знайшлися, тож треба було закінчувати швидше. Останні доробки, збір кухні та всіх меблів, клінінг, форс-мажори. Було важко, але ми впорались. І вклалися в початковий термін. А ще не перевищили бюджет.
Ось що у нас вийшло:











Скільки все коштувало?
Як і було обіцяно, наводимо структуру всіх витрат. Ціни станом на кінець 2019 року, тому зараз вони можуть бути неактуальними. Для розрахунку цін для вашого об'єкту використовуйте наш Калькулятор.
Загальна вартість ремонту:
444 551 грн.
Меблі техніка та інше:
Кухня - 35 800 грн.
Вбудовані шафи - 72 780 грн.
Техніка на кухню (варильна поверхня, духовка, витяжка, посудомийна машина) - 23 940 грн.
Двері - 33 400 грн.
Диван - 19 800 грн.
Інші меблі, техніка, аксесуари - 92 181 грн.
Разом: 277 901 грн.
Що НЕ входить у вартість:
Меблі
Побутова техніка
Декор
Digital-інструменти для контролю ремонту
Детально розглянемо цю тему в окремій статті в нашому Instagram, а зараз просто перерахуємо інструменти, що довели свою користь, які ми використовуємо на проєктах.
Особистий кабінет Замовника
Ми нещодавно запустили цю функцію и вже отримуємо позитивний фідбек від клієнтів.
Креслення, щотижневі звіти, статус виконання, деталі фінансування та контакти Керівника проекту - все тут і регулярно оновлюється.
Trello
Тут ми відслідковуємо всі задачі проекту. Списки, чек-листи, замітки і посилання.
Telegram
І найголовніший інструмент - Telegram.
Для кожного об'єкту у нас є своя група, де ми вирішуємо актуальні питання, ведемо облік витрат та координуємо діяльність всіх учасників проекту.
Ми поділилися з вами живим досвідом реалізації ремонту від початку і до кінця на цьому об'єкті. Сподіваємося, вам було цікаво і корисно. Слідкуйте за нашим Instagram, обіцяємо продовжувати ділитися цінною інформацією за темою.
До зустрічі!
Прямо зараз ви можете відправити нам свій дизайн-проєкт на безкоштовний розрахунок чи зв'язатись, щоб отримати попередній розрахунок навіть без проєкту














