

2020
ЖК Сирецькі Сади
Сучасна 1-кімнатна квартира для молодої пари
Місце
м. Київ, ЖК Сирецькі Сади
Площа
47 м2
Кількість кімнат
1 кімната
Стиль
Сучасний
Тип будинку
Новобудова
Термін реалізації
4 місяця
Як пройшов ремонт
Олена та Дмитро - наші замовники на цьому об'єкті. Вони шукали компанію, яка зробить ремонт з нуля так, щоб їм не довелося паритися і ставати виконробами на декілька місяців. Провели перемовини, обговорили ціну та строки, підписали договір. Розробили проект за 4 тижні і зробили ремонт за 4 місяці.
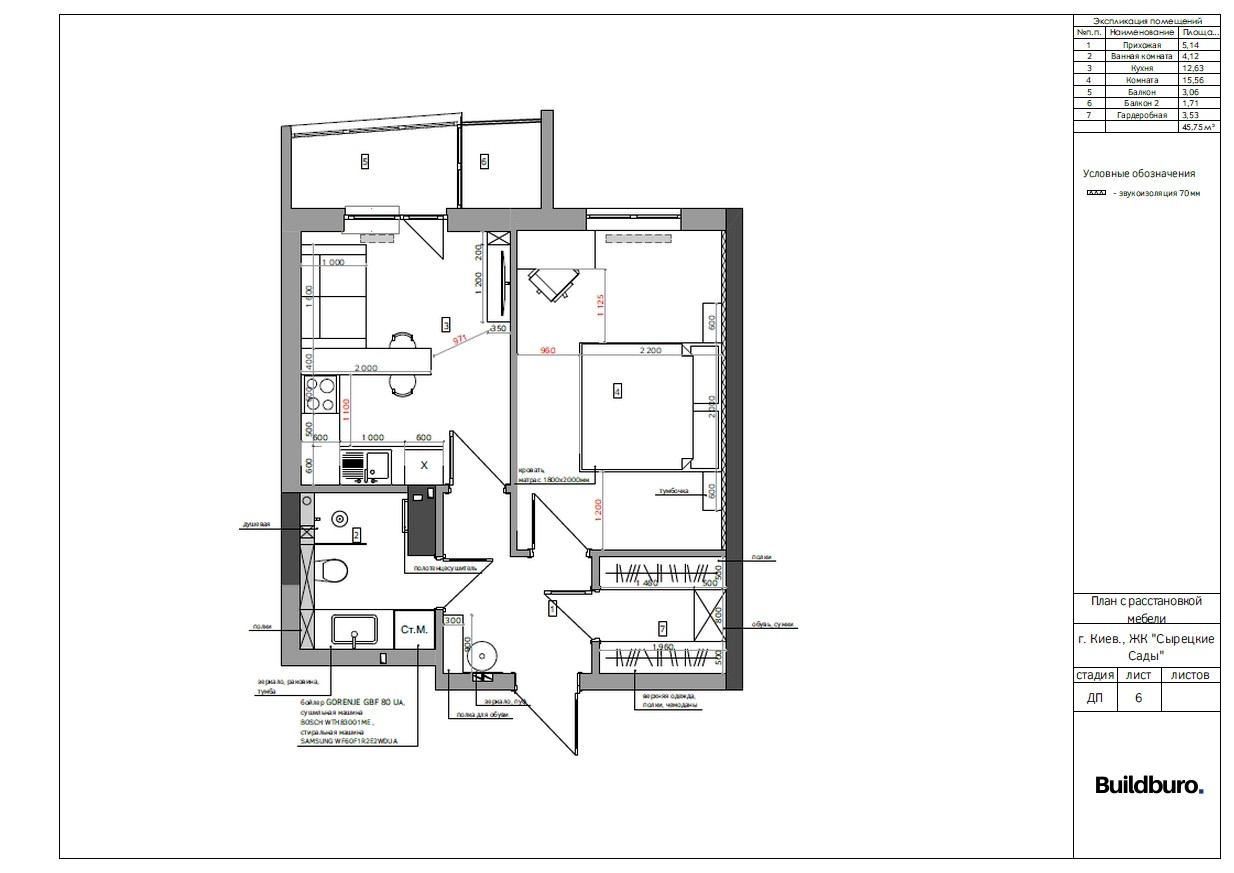
Проект робили без візуалізацій, лише комплект креслень. Нижче планування:

Схема розташування меблів з комплекту креслень
Замовники самостійно замовили кухню та меблі в санвузол. Квартиру здавали чистою, після клінінгу.
Ось що вийшло в результаті:









Оздоблювальні матеріали:
Підлога:
ламінат: Swiss Krono Venus 3712 Горіх Афіна, 8*193*1380мм, 2,397/уп., 4V, 32кл.
плитка: Zeus Ceramica Allwood walnut ZZXWU3R 15x90
Стіни:
гладкі пофарбовані в усіх кімнатах
плитка в санвузлах: Zeus Ceramica Il Tempo ZRXSN8R, Zeus Ceramica Eterno Beige ZRXET3BR 60x60
Стеля:
Натяжна, біла матова
Міжкімнатні двері:
DOORIS G01 в кімнатах, DOORIS прихованого монтажу в гардеробі
Унітаз: VILLEROY & BOCH ARCHITECTURA
Раковина: Rea Demi Slim
Змішувачі: Rea Tess
Строки реалізації:
Дата початку:
02.11.2020
Дата завершення:
19.03.2021
Загальний строк ремонту - 137 календарних днів.

Відгук замовника щодо виконаної роботи




Прямо зараз ви можете відправити нам свій дизайн-проєкт на безкоштовний розрахунок чи зв'язатись, щоб отримати попередній розрахунок навіть без проєкту
Більше робіт
2020-2025
Більше робіт
2020-2025


2020
ЖК Сирецькі Сади
Сучасна 1-кімнатна квартира для молодої пари
Місце
м. Київ, ЖК Сирецькі Сади
Площа
47 м2
Кількість кімнат
1 кімната
Стиль
Сучасний
Тип будинку
Новобудова
Термін реалізації
4 місяця
Як пройшов ремонт
Олена та Дмитро - наші замовники на цьому об'єкті. Вони шукали компанію, яка зробить ремонт з нуля так, щоб їм не довелося паритися і ставати виконробами на декілька місяців. Провели перемовини, обговорили ціну та строки, підписали договір. Розробили проект за 4 тижні і зробили ремонт за 4 місяці.
Проект робили без візуалізацій, лише комплект креслень. Нижче планування:

Схема розташування меблів з комплекту креслень
Замовники самостійно замовили кухню та меблі в санвузол. Квартиру здавали чистою, після клінінгу.
Ось що вийшло в результаті:









Оздоблювальні матеріали:
Підлога:
ламінат: Swiss Krono Venus 3712 Горіх Афіна, 8*193*1380мм, 2,397/уп., 4V, 32кл.
плитка: Zeus Ceramica Allwood walnut ZZXWU3R 15x90
Стіни:
гладкі пофарбовані в усіх кімнатах
плитка в санвузлах: Zeus Ceramica Il Tempo ZRXSN8R, Zeus Ceramica Eterno Beige ZRXET3BR 60x60
Стеля:
Натяжна, біла матова
Міжкімнатні двері:
DOORIS G01 в кімнатах, DOORIS прихованого монтажу в гардеробі
Унітаз: VILLEROY & BOCH ARCHITECTURA
Раковина: Rea Demi Slim
Змішувачі: Rea Tess
Строки реалізації:
Дата початку:
02.11.2020
Дата завершення:
19.03.2021
Загальний строк ремонту - 137 календарних днів.

Відгук замовника щодо виконаної роботи




Прямо зараз ви можете відправити нам свій дизайн-проєкт на безкоштовний розрахунок чи зв'язатись, щоб отримати попередній розрахунок навіть без проєкту


2020
ЖК Сирецькі Сади
Сучасна 1-кімнатна квартира для молодої пари
Місце
м. Київ, ЖК Сирецькі Сади
Площа
47 м2
Кількість кімнат
1 кімната
Стиль
Сучасний
Тип будинку
Новобудова
Термін реалізації
4 місяця
Як пройшов ремонт
Олена та Дмитро - наші замовники на цьому об'єкті. Вони шукали компанію, яка зробить ремонт з нуля так, щоб їм не довелося паритися і ставати виконробами на декілька місяців. Провели перемовини, обговорили ціну та строки, підписали договір. Розробили проект за 4 тижні і зробили ремонт за 4 місяці.
Проект робили без візуалізацій, лише комплект креслень. Нижче планування:

Схема розташування меблів з комплекту креслень
Замовники самостійно замовили кухню та меблі в санвузол. Квартиру здавали чистою, після клінінгу.
Ось що вийшло в результаті:









Оздоблювальні матеріали:
Підлога:
ламінат: Swiss Krono Venus 3712 Горіх Афіна, 8*193*1380мм, 2,397/уп., 4V, 32кл.
плитка: Zeus Ceramica Allwood walnut ZZXWU3R 15x90
Стіни:
гладкі пофарбовані в усіх кімнатах
плитка в санвузлах: Zeus Ceramica Il Tempo ZRXSN8R, Zeus Ceramica Eterno Beige ZRXET3BR 60x60
Стеля:
Натяжна, біла матова
Міжкімнатні двері:
DOORIS G01 в кімнатах, DOORIS прихованого монтажу в гардеробі
Унітаз: VILLEROY & BOCH ARCHITECTURA
Раковина: Rea Demi Slim
Змішувачі: Rea Tess
Строки реалізації:
Дата початку:
02.11.2020
Дата завершення:
19.03.2021
Загальний строк ремонту - 137 календарних днів.

Відгук замовника щодо виконаної роботи




Прямо зараз ви можете відправити нам свій дизайн-проєкт на безкоштовний розрахунок чи зв'язатись, щоб отримати попередній розрахунок навіть без проєкту


